£100,000
Land for saleMagpie Lane, Willaston CW5
EPC Rating: D
About this property
Land/building plot off magpie lane, willaston, nantwich
EPC Rating: D
Directions
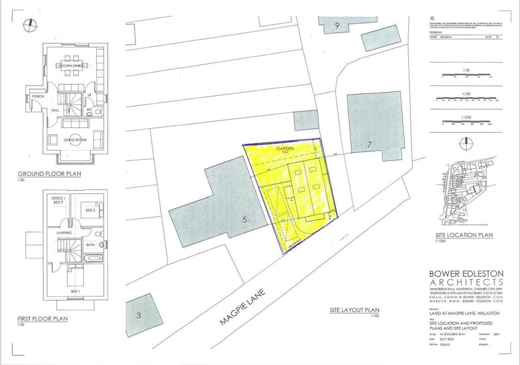
From Nantwich proceed along Crewe Road towards The Peacock public house, at the roundabout proceed straight over, take the next turn on the right into Coppice Road, proceed along here and at the T junction bear right into Wistaston Road and immediately left into Magpie Lane and the Building Plot is situated midway on the left hand side.
Location & Amenities
Willaston has always proved to be a popular place to live as it offers a wide selection of local amenities including primary school, nursery, local shops, selection of of public houses, village hall with an active social calendar and community groups, plus the church and mini supermarket. Cheerbrook Farm shop is close by and provides a farm shop, café and butchers. The historic market town centre of Nantwich is a short travelling distance away, approximately two miles, and is renowned for its beautiful architecture and character. The town offers an excellent selection of individual independent shops, eateries, restaurants and bars and also provides more extensive facilities including renowned primary and secondary schools and three major supermarkets. The property is considered ideally placed for the commuter, with a network of excellent road links giving immediate access to the M6 motorway at junction 16 via the A500 (7 miles), Crewe station (2.5 miles) offers fast access into London Euston (90 minutes) and other major cities.
Planning Permission
This is a rare opportunity to acquire a building plot ideal for a self build extending to approximately 199 square metres. There is outline planning permission, Application Number 23/4218N for a detached two storey dwelling. Accompanying these details there is a site plan and layout plans for the proposed accommodation but obviously any desiring purchaser can make their own enquiries.
Proposed Summary Of Dwelling
Entrance Porch, Entrance Hall, Living Room, Dining/Kitchen, Utility, Cloakroom, W/C. First Floor: Three Bedrooms, Family Bathroom, Car Parking Space.
Services
All mains services are available (subject to enquiries).
Tenure
Will be Freehold.
Viewings
To call on the site.
EPC Rating: D
Directions
From Nantwich proceed along Crewe Road towards The Peacock public house, at the roundabout proceed straight over, take the next turn on the right into Coppice Road, proceed along here and at the T junction bear right into Wistaston Road and immediately left into Magpie Lane and the Building Plot is situated midway on the left hand side.
Location & Amenities
Willaston has always proved to be a popular place to live as it offers a wide selection of local amenities including primary school, nursery, local shops, selection of of public houses, village hall with an active social calendar and community groups, plus the church and mini supermarket. Cheerbrook Farm shop is close by and provides a farm shop, café and butchers. The historic market town centre of Nantwich is a short travelling distance away, approximately two miles, and is renowned for its beautiful architecture and character. The town offers an excellent selection of individual independent shops, eateries, restaurants and bars and also provides more extensive facilities including renowned primary and secondary schools and three major supermarkets. The property is considered ideally placed for the commuter, with a network of excellent road links giving immediate access to the M6 motorway at junction 16 via the A500 (7 miles), Crewe station (2.5 miles) offers fast access into London Euston (90 minutes) and other major cities.
Planning Permission
This is a rare opportunity to acquire a building plot ideal for a self build extending to approximately 199 square metres. There is outline planning permission, Application Number 23/4218N for a detached two storey dwelling. Accompanying these details there is a site plan and layout plans for the proposed accommodation but obviously any desiring purchaser can make their own enquiries.
Proposed Summary Of Dwelling
Entrance Porch, Entrance Hall, Living Room, Dining/Kitchen, Utility, Cloakroom, W/C. First Floor: Three Bedrooms, Family Bathroom, Car Parking Space.
Services
All mains services are available (subject to enquiries).
Tenure
Will be Freehold.
Viewings
To call on the site.
Mortgage calculator
Monthly repayment
£500 per month
Whole of market comparison
70+ lenders and 10,000+ products
The monthly repayments provided are estimates and should be used as a guide only. The actual amount you can borrow will depend on your personal financial situation and subject to a full application. For a more precise estimate, please use the Mojo mortgage calculator. Your home or property may be repossessed if you do not keep up repayments on your mortgage.
More information
Tenure
Council tax band
Council tax band not yet known
Ground rent
£0


.png)