£500,000
Land for saleRollestone Street, Salisbury, Wiltshire SP1
4 beds
About this property
Prime city-centre residential development opportunity
Full planning permission granted for 3 townhouses (Reference: Pl/2025/06308)
Highly accessible location within walking distance of the Market Square and mainline railway station
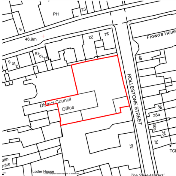
Site area of approximately 0.19 acres (0.08 ha)
Freehold with vacant possession
The property is situated between Rollestone Street and Endless Street
Unconditional offers invited
Ref: JM1394
Extending to approximately 0.19 acres, the site occupies a discreet and enclosed position with access from Rollestone Street and sits within the Salisbury Conservation Area. The surroundings are characterised by established built form, including a number of listed buildings, with the site itself bounded by a combination of existing structures and historic boundary walls, including a Grade II listed wall fronting Rollestone Street.
Planning permission was granted on 18 December 2025 under reference pl/2025/06308 for the erection of three residential dwellings, together with associated access, parking and landscaping.
The approved scheme has been carefully designed to respond to its sensitive historic context while delivering well-proportioned, high-quality townhouses in a highly sustainable and central location.
The property is situated within easy walking distance of Salisbury Market Square, the city’s main shopping and leisure amenities, and the mainline railway station providing direct services to London Waterloo, making this a compelling opportunity for developers targeting the city’s strong owner-occupier market.
The site is offered freehold with vacant possession, and unconditional offers are invited. Ref: JM1394
Mortgage calculator
£2,501 per month
70+ lenders and 10,000+ products
The monthly repayments provided are estimates and should be used as a guide only. The actual amount you can borrow will depend on your personal financial situation and subject to a full application. For a more precise estimate, please use the Mojo mortgage calculator. Your home or property may be repossessed if you do not keep up repayments on your mortgage.



.png)