Guide price
£265,000
(£489/sq. ft)
1 bed semi-detached bungalow for saleLetcombe Bassett, Wantage, Oxfordshire OX12
1 bed
1 bath
1 reception
542 sq. ft
EPC Rating: F
Freehold
About this property
Village location
Potential to extend
Renovation opportunity
Large living room
Large potential bedroom
Wrap around gardens
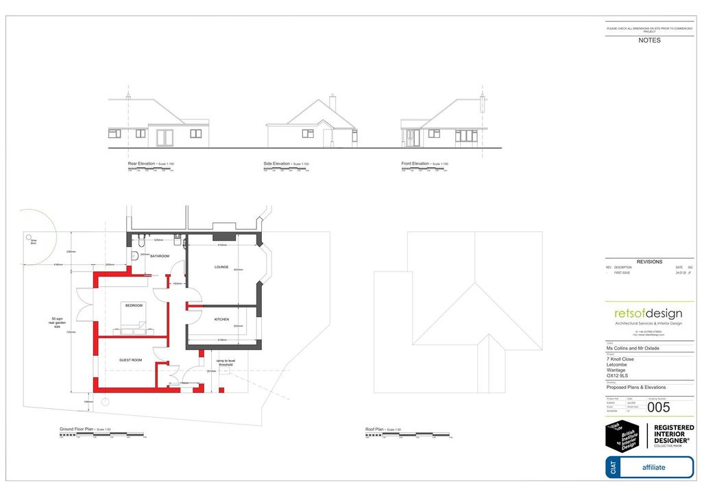
A unique opportunity to acquire an affordable semi-detached bungalow in this highly desirable down village. Situated in a quiet close coming to the market as an unfinished project with planning permission to extend the property.
There have been some initial preparatory works internally in preparation for modernising and therefore needs substantial works. Also with the added benefit of planning permission to enlarge the property throughout providing two bedrooms with a bathroom and kitchen and sitting room when finished.
The building regulation drawings are completed and will be included in the sale. These are available to look at upon request.
The gardens wrap round three sides of the property with attractive views to the rear. There is parking available in the close whilst not allocated it is normally available.
There have been some initial preparatory works internally in preparation for modernising and therefore needs substantial works. Also with the added benefit of planning permission to enlarge the property throughout providing two bedrooms with a bathroom and kitchen and sitting room when finished.
The building regulation drawings are completed and will be included in the sale. These are available to look at upon request.
The gardens wrap round three sides of the property with attractive views to the rear. There is parking available in the close whilst not allocated it is normally available.
Mortgage calculator
Monthly repayment
£1,325 per month
Whole of market comparison
70+ lenders and 10,000+ products
The monthly repayments provided are estimates and should be used as a guide only. The actual amount you can borrow will depend on your personal financial situation and subject to a full application. For a more precise estimate, please use the Mojo mortgage calculator. Your home or property may be repossessed if you do not keep up repayments on your mortgage.



.png)