£245,000
Land for saleLeylands, Highfields Road, Highfields Caldecote, Cambridge CB23
EPC Rating: B
About this property
Highfields Caldecote is a well-served village, situated just 8 miles West of Cambridge. It is in the catchment area for the highly acclaimed Comberton Village College.
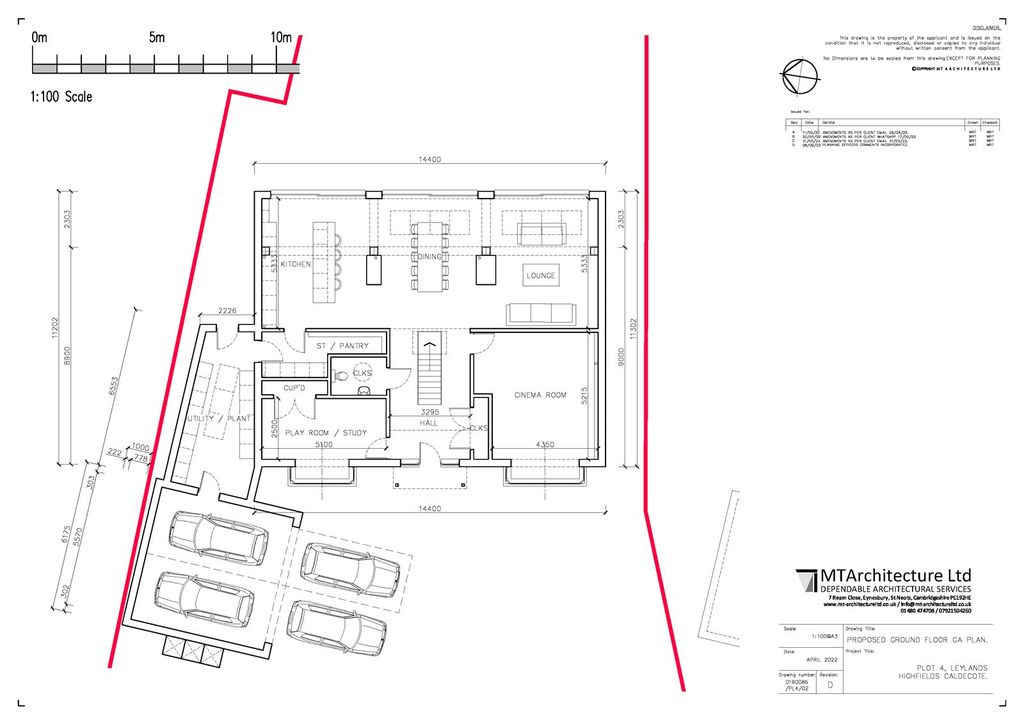
The plot has full planning permission 22/04283/ful, for a 3000sqft (280 sqm) modern styled home, complete with a double garage.
The proposed home design uses high-quality materials that complement the surrounding area.
Resale values and estimated build costs available
Offering 0.18 of an acre.
The site is located within the jurisdiction of South Cambridgeshire District Council. Full planning permission was granted under application reference number 22/04283/ful, for the ‘erection of a detached dwelling’.
Tenure
The freehold of the site is offered for sale with vacant possession on completion.
Services
Interested parties must satisfy themselves as to the availability and adequacy of all services prior to making their unconditional offer.
Wayleaves, easements, covenants
The site is sold subject to all wayleaves, easements, covenants and rights of way, whether or not disclosed.
Method of Sale
The freehold of the Site is offered for sale by Informal Tender on an unconditional basis
VAT
We understand that the seller has not elected to opt the Property to tax, therefore VAT will not be charged in addition to the purchase price.
Highfields Caldecote is a well-served village, situated just 8 miles West of Cambridge. It is in the catchment area for the highly acclaimed Comberton Village College (served by a school bus) which also has a sports hall, sixth form centre and offers adult education classes.
Mortgage calculator
£1,225 per month
70+ lenders and 10,000+ products
The monthly repayments provided are estimates and should be used as a guide only. The actual amount you can borrow will depend on your personal financial situation and subject to a full application. For a more precise estimate, please use the Mojo mortgage calculator. Your home or property may be repossessed if you do not keep up repayments on your mortgage.



.png)