Guide price
£225,000
Land for saleDevelopment Site - St Johns Lane, Bedminster BS3
EPC Rating: D
Auction
Freehold
About this property
20 May live online auction
Prime Development Opportunity
Planning consent granted for 3 apartments
Superb location close to Victoria Park
Gdv of circa £865,000
8-week completion
Redevelopment opportunity with planning granted
A prime redevelopment opportunity comprising a spacious corner property with full planning consent granted for demolition and replacement with three self-contained apartments (2 x 1-bedroom duplex flats and 1 x 1-bedroom flat).
The property is situated in a fantastic location on the corner of St Johns Lane and Merioneth Street and Victoria Park is just 100m away. Easy access is also provided to the city centre and Bristol Temple Meads train station.
A superb opportunity for builders and developers to create an exclusive development of apartments in this sought-after location.
For Sale By Auction
This property is due to feature in our online auction on 20 May 2026 at 6.00pm. Bidding is via proxy, telephone or online remote bidding.
Viewings
By appointment.
Summary
Redevelopment opportunity with planning granted for 3 apartments
Description
A prime redevelopment opportunity comprising a substantial corner property with full planning consent for demolition and replacement with three self-contained apartments, including two 1-bedroom duplex flats and one 1-bedroom apartment.
Occupying a corner position at the junction of St Johns Lane and Merioneth Street, the property benefits from a superb location just 100 metres from Victoria Park. The city centre and Bristol Temple Meads railway station are both easily accessible, making this an attractive prospect for future occupiers.
A rare opportunity for builders and developers to deliver a high-quality apartment scheme in a well-established and sought-after area.
Location
The property is situated in a fantastic location on the corner of St Johns Lane and Merioneth Street and Victoria Park is just 100m away. Easy access is also provided to the city centre and Bristol Temple Meads train station.
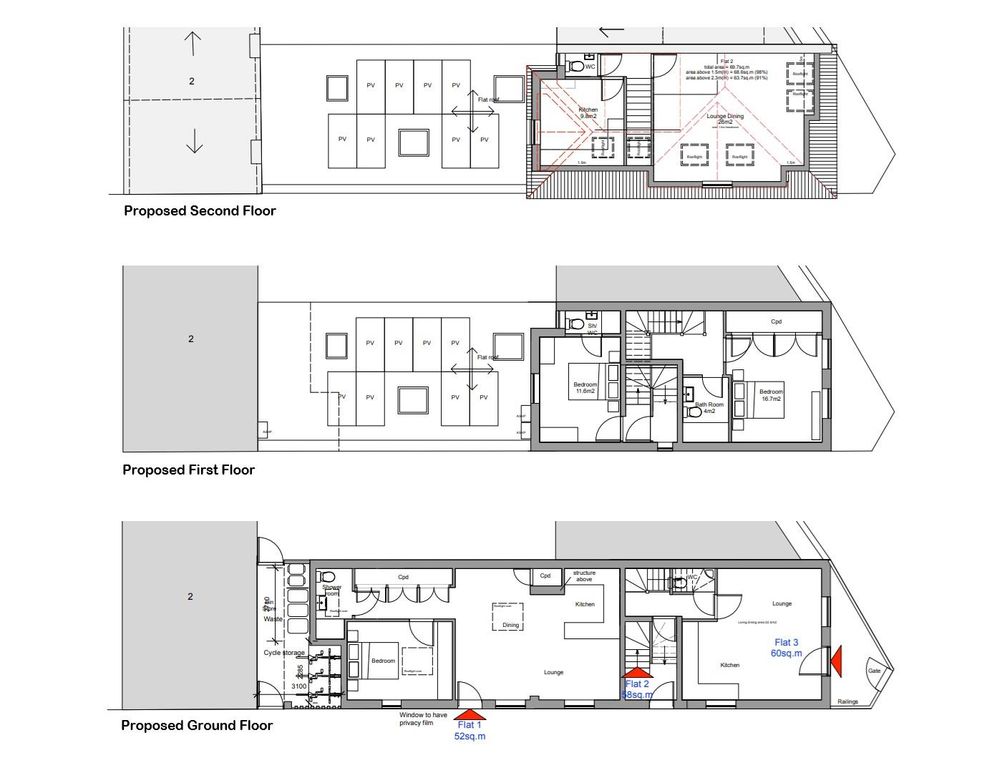
Schedule Of Accommodation & Resale Values
Please see proposed floor areas and anticipated resale values for each apartment below:
Flat 1: One-bedroom ground floor apartment (52 m2) - £275,000
flat 2: One-bedroom first & second floor duplex (58 m2) - £295,000
flat 3: One-bedroom ground & first floor duplex (60 m2) - £295,000
Gross Development Value (gdv): £865,000
Planning
Full planning consent was granted on 18 December 2025 for the demolition and replacement of existing mixed use convenience store building (E) with residential accommodation (C3) new residential development comprising 3 x flats under Application No. 25/12669/F.
Local authority: Bristol City Council.
Tenure
The property is for sale on a freehold basis with vacant possession.
Completion
Completion for this lot will be 8 weeks from exchange of contracts or sooner by mutual agreement.
Energy Performance Certificate (Epc)
Rating: D
Letting - What Can Maggs & Allen Achieve For You?
Maggs & Allen's experienced letting team are happy to discuss the rental of this property and can advise on maximising the investment. We offer Full Management, Let Only and Rent Collection Services. Contact Jessica Archer and her team on or email .
Auction Or Bridging Finance Required?
Do you need a mortgage or loan quickly? Maggs & Allen have specialist Independent Brokers who can arrange residential and commercial finance on all types of property. Contact the Auction Team today to be put through to our mortgage and loan experts on or email
Buyer's Premium
Please be advised that all purchasers are subject to a £1,800 plus VAT (£2,160 inc VAT) buyer’s premium payable upon exchange of contracts.
*Guide Price
Guide Prices are provided as an indication of each seller's minimum expectation. They are not necessarily figures which a property will sell for and may change at any time prior to the auction. Each property will be offered subject to Reserve Price (a figure below which the Auctioneer cannot sell the property during the auction) which we expect will be set within the Guide Range or no more than 10% above a single figure Guide.
Reserve Price
The seller's minimum acceptable price at auction and the figure below which the auctioneer cannot sell. The reserve price is not disclosed and remains confidential between the seller and the auctioneer. Both the guide price and the reserve price can be subject to change up to and including the day of the auction.
Proxy, Telephone & Online Remote Bidding
The auction will be held online via live video stream with buyers able to bid via telephone, online or by submitting a proxy bid. You will need to complete our remote bidding form, which is available to download from our website. The completed form, id (driving licence or passport and a recent utility bill stating the home address of the purchaser) and a bank transfer for the Preliminary Deposit must be received no later than 24 hours before the date of the auction.
Preliminary Deposits
The Preliminary Deposit required for each lot you wish to bid for is £5,000.
If your bid is successful, the balance of the deposit monies and Buyer’s Premium (£1,800 plus VAT) must be transferred to our client account within 24 hours of the auction sale. If you are unsuccessful at the auction, your Preliminary Deposit will be returned to you within 5 working days.
Rental Estimates
All rental estimates are provided in good faith. They should be verified by your own professional advisors prior to a commitment to purchase.
A prime redevelopment opportunity comprising a spacious corner property with full planning consent granted for demolition and replacement with three self-contained apartments (2 x 1-bedroom duplex flats and 1 x 1-bedroom flat).
The property is situated in a fantastic location on the corner of St Johns Lane and Merioneth Street and Victoria Park is just 100m away. Easy access is also provided to the city centre and Bristol Temple Meads train station.
A superb opportunity for builders and developers to create an exclusive development of apartments in this sought-after location.
For Sale By Auction
This property is due to feature in our online auction on 20 May 2026 at 6.00pm. Bidding is via proxy, telephone or online remote bidding.
Viewings
By appointment.
Summary
Redevelopment opportunity with planning granted for 3 apartments
Description
A prime redevelopment opportunity comprising a substantial corner property with full planning consent for demolition and replacement with three self-contained apartments, including two 1-bedroom duplex flats and one 1-bedroom apartment.
Occupying a corner position at the junction of St Johns Lane and Merioneth Street, the property benefits from a superb location just 100 metres from Victoria Park. The city centre and Bristol Temple Meads railway station are both easily accessible, making this an attractive prospect for future occupiers.
A rare opportunity for builders and developers to deliver a high-quality apartment scheme in a well-established and sought-after area.
Location
The property is situated in a fantastic location on the corner of St Johns Lane and Merioneth Street and Victoria Park is just 100m away. Easy access is also provided to the city centre and Bristol Temple Meads train station.
Schedule Of Accommodation & Resale Values
Please see proposed floor areas and anticipated resale values for each apartment below:
Flat 1: One-bedroom ground floor apartment (52 m2) - £275,000
flat 2: One-bedroom first & second floor duplex (58 m2) - £295,000
flat 3: One-bedroom ground & first floor duplex (60 m2) - £295,000
Gross Development Value (gdv): £865,000
Planning
Full planning consent was granted on 18 December 2025 for the demolition and replacement of existing mixed use convenience store building (E) with residential accommodation (C3) new residential development comprising 3 x flats under Application No. 25/12669/F.
Local authority: Bristol City Council.
Tenure
The property is for sale on a freehold basis with vacant possession.
Completion
Completion for this lot will be 8 weeks from exchange of contracts or sooner by mutual agreement.
Energy Performance Certificate (Epc)
Rating: D
Letting - What Can Maggs & Allen Achieve For You?
Maggs & Allen's experienced letting team are happy to discuss the rental of this property and can advise on maximising the investment. We offer Full Management, Let Only and Rent Collection Services. Contact Jessica Archer and her team on or email .
Auction Or Bridging Finance Required?
Do you need a mortgage or loan quickly? Maggs & Allen have specialist Independent Brokers who can arrange residential and commercial finance on all types of property. Contact the Auction Team today to be put through to our mortgage and loan experts on or email
Buyer's Premium
Please be advised that all purchasers are subject to a £1,800 plus VAT (£2,160 inc VAT) buyer’s premium payable upon exchange of contracts.
*Guide Price
Guide Prices are provided as an indication of each seller's minimum expectation. They are not necessarily figures which a property will sell for and may change at any time prior to the auction. Each property will be offered subject to Reserve Price (a figure below which the Auctioneer cannot sell the property during the auction) which we expect will be set within the Guide Range or no more than 10% above a single figure Guide.
Reserve Price
The seller's minimum acceptable price at auction and the figure below which the auctioneer cannot sell. The reserve price is not disclosed and remains confidential between the seller and the auctioneer. Both the guide price and the reserve price can be subject to change up to and including the day of the auction.
Proxy, Telephone & Online Remote Bidding
The auction will be held online via live video stream with buyers able to bid via telephone, online or by submitting a proxy bid. You will need to complete our remote bidding form, which is available to download from our website. The completed form, id (driving licence or passport and a recent utility bill stating the home address of the purchaser) and a bank transfer for the Preliminary Deposit must be received no later than 24 hours before the date of the auction.
Preliminary Deposits
The Preliminary Deposit required for each lot you wish to bid for is £5,000.
If your bid is successful, the balance of the deposit monies and Buyer’s Premium (£1,800 plus VAT) must be transferred to our client account within 24 hours of the auction sale. If you are unsuccessful at the auction, your Preliminary Deposit will be returned to you within 5 working days.
Rental Estimates
All rental estimates are provided in good faith. They should be verified by your own professional advisors prior to a commitment to purchase.
Mortgage calculator
Monthly repayment
£1,125 per month
Whole of market comparison
70+ lenders and 10,000+ products
The monthly repayments provided are estimates and should be used as a guide only. The actual amount you can borrow will depend on your personal financial situation and subject to a full application. For a more precise estimate, please use the Mojo mortgage calculator. Your home or property may be repossessed if you do not keep up repayments on your mortgage.



.png)