£239,950
Land for saleFirgrove Road, North Baddesley, Southampton, Hampshire SO52
Freehold
About this property
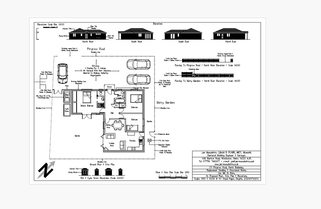
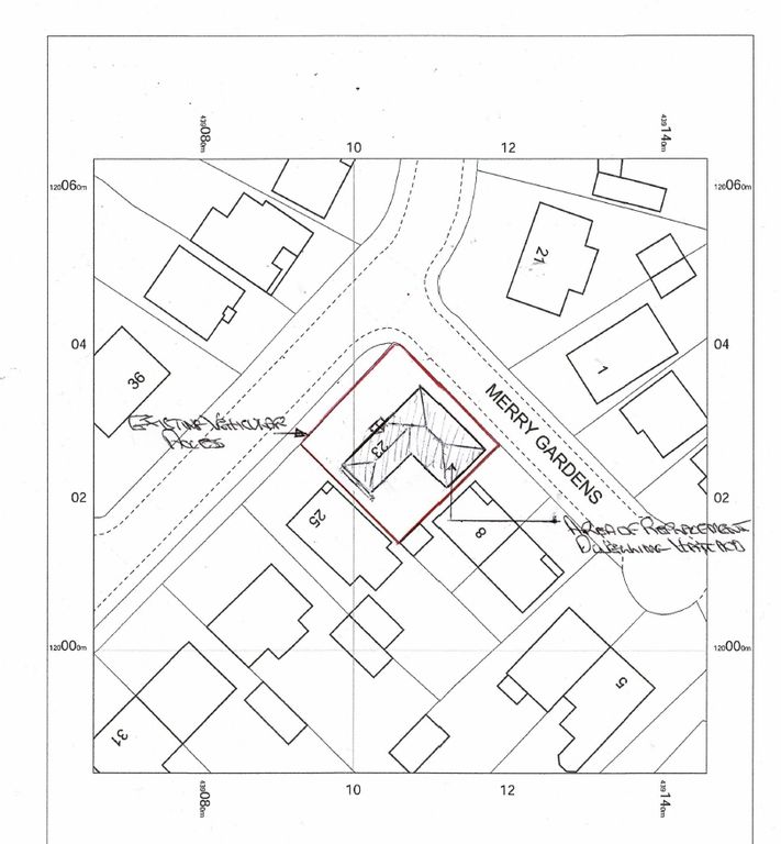
Corner Plot
Full planning consent for a detached three-bedroom bungalow
Planning Ref: 24/02902/fulls
Sought after village location close to amenities
Gas and water on site
An exceptional opportunity to acquire a corner plot with full planning consent for a detached three-bedroom bungalow.
(Planning Ref: 24/02902/fulls), located in the sought-after village of North Baddesley, close to a wide range of local amenities.
Positioned on the corner of Merry Gardens, the site has already been cleared and benefits from gas and water services on site.
For further information on broadband and mobile coverage, please refer to the Ofcom Checker online.
Should a purchaser(s) have an offer accepted on a property marketed by Charters Estate Agents, they will need to undertake an identification check. This is done to meet our obligation under Anti Money Laundering Regulations (aml) and is a legal requirement. We use a specialist third party service to verify your identity. The cost of these checks is £60 inc. VAT per purchase, which is paid in advance, when an offer is agreed and prior to a sales memorandum being issued. This charge is non-refundable under any circumstances.
North Baddesley is one of the largest villages in the South of England, sitting just 3 miles east of Romsey. It offers an abundance of local and community facilities - making it ideal for families – along with the cultural sites, retail opportunities and travel links that come with being so close to a main town. There’s a gp practice, community-run library, Emer Bog Nature Reserve, a large recreational ground for sports and outdoor activities and a primary school within the village and The Mountbatten School 2.5 miles away in Romsey. Communication links are excellent with the nearby M3 and M27 within easy reach and local bus routes leading to Romsey, Eastleigh and Southampton.
(Planning Ref: 24/02902/fulls), located in the sought-after village of North Baddesley, close to a wide range of local amenities.
Positioned on the corner of Merry Gardens, the site has already been cleared and benefits from gas and water services on site.
For further information on broadband and mobile coverage, please refer to the Ofcom Checker online.
Should a purchaser(s) have an offer accepted on a property marketed by Charters Estate Agents, they will need to undertake an identification check. This is done to meet our obligation under Anti Money Laundering Regulations (aml) and is a legal requirement. We use a specialist third party service to verify your identity. The cost of these checks is £60 inc. VAT per purchase, which is paid in advance, when an offer is agreed and prior to a sales memorandum being issued. This charge is non-refundable under any circumstances.
North Baddesley is one of the largest villages in the South of England, sitting just 3 miles east of Romsey. It offers an abundance of local and community facilities - making it ideal for families – along with the cultural sites, retail opportunities and travel links that come with being so close to a main town. There’s a gp practice, community-run library, Emer Bog Nature Reserve, a large recreational ground for sports and outdoor activities and a primary school within the village and The Mountbatten School 2.5 miles away in Romsey. Communication links are excellent with the nearby M3 and M27 within easy reach and local bus routes leading to Romsey, Eastleigh and Southampton.
Mortgage calculator
Monthly repayment
£1,200 per month
Whole of market comparison
70+ lenders and 10,000+ products
The monthly repayments provided are estimates and should be used as a guide only. The actual amount you can borrow will depend on your personal financial situation and subject to a full application. For a more precise estimate, please use the Mojo mortgage calculator. Your home or property may be repossessed if you do not keep up repayments on your mortgage.



.png)