Offers over
£230,000
4 bed semi-detached house for saleEden Avenue, Edenfield, Ramsbottom BL0
4 beds
1 bath
1 reception
EPC Rating: E
Chain free
Freehold
About this property
Semi detached dormer property
Three bedrooms
Requires comprehensive scheme of refurbishment
No onward chain
Popular location
Parking & gardens
Close to m-way network
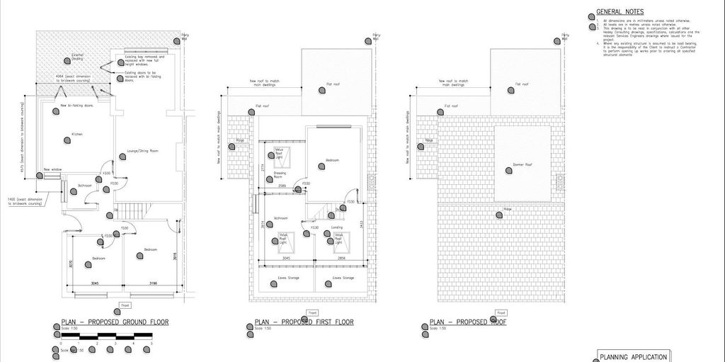
Eden Avenue, Edenfield is a substantial, semi detached dormer property located in this popular residential area offered for sale with no onward chain and with views over neighbouring land. The house is within easy reach of the village centre and a short drive to the motorway network and nearby Ramsbottom and Rawtenstall town centres. The house has been partially stripped out and is need of a comprehensive scheme of refurbishment and has planning permission to be extended, the new layout is shown on the gallery of images, the present owners have carried out significant strengthening and rebuilding to the driveway retaining wall. The accommodation could comprise, entrance hall, large lounge & dining room, kitchen, two bedrooms and a bathroom, first floor main bedroom suite with dressing room and second bathroom. Outside there is a garden forecourt and a side driveway leading to rear gardens and patio area overlooking adjoining fields.
Council Tax Band D/Freehold property
Entrance Hall
L-shaped hallway with stairs to the first floor.
Lounge & Dining Room
Window to the rear and patio door to the side.
Kitchen
Windows to the rear and side, door to the rear.
Bedroom
Walk in closet, window to the front.
Bedroom Two
Window to the front.
Bathroom
Window to the side.
First Floor
Bedroom One
Proposed main bedroom with dressing room and additional bathroom.
Outside
Outside there is a garden forecourt and a long side driveway leading to a paved rear patio and steps down into further gardens.
Council Tax Band D/Freehold property
Entrance Hall
L-shaped hallway with stairs to the first floor.
Lounge & Dining Room
Window to the rear and patio door to the side.
Kitchen
Windows to the rear and side, door to the rear.
Bedroom
Walk in closet, window to the front.
Bedroom Two
Window to the front.
Bathroom
Window to the side.
First Floor
Bedroom One
Proposed main bedroom with dressing room and additional bathroom.
Outside
Outside there is a garden forecourt and a long side driveway leading to a paved rear patio and steps down into further gardens.
Mortgage calculator
Monthly repayment
£1,150 per month
Whole of market comparison
70+ lenders and 10,000+ products
The monthly repayments provided are estimates and should be used as a guide only. The actual amount you can borrow will depend on your personal financial situation and subject to a full application. For a more precise estimate, please use the Mojo mortgage calculator. Your home or property may be repossessed if you do not keep up repayments on your mortgage.



.png)