Guide price
£1,395,000
Land for saleHeronway, Hutton Mount, Brentwood CM13
EPC Rating: E
About this property
Prime South West Facing 0.25 Acre Plot on Hutton Mount
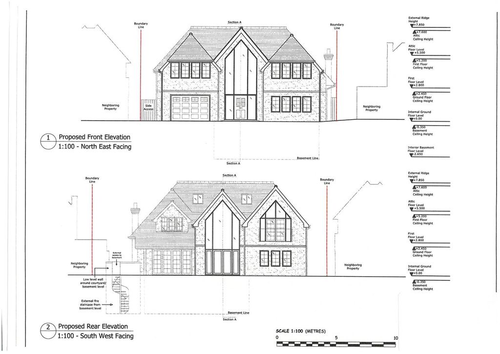
Full planning permission granted (ref 24/00246/ful)
Approved scheme for 4,779 sq ft of high end accommodation arranged over three levels
Rare opportunity to build a bespoke home in a prestigious setting
Ideally located 0.9 miles from Shenfield Broadway, mainline station and Crossrail terminus
Excellent local schooling nearby, including the highly regarded St Martin’s School
Ideally located just 0.9 miles from Shenfield Broadway, the property benefits from convenient access to the mainline railway station and Crossrail (Elizabeth Line) terminus, offering excellent links into London. A range of highly regarded local schools are within easy reach, including the much sought after St Martin’s School.
Set within one of the area’s most exclusive and most desirable residential locations, this is a truly exceptional opportunity to build a landmark home in Hutton Mount.
For more detail, please contact our sales office.
All CGIs are based on the original bespoke designs for the current owner and are for illustrative purposes only
Mortgage calculator
£6,978 per month
70+ lenders and 10,000+ products
The monthly repayments provided are estimates and should be used as a guide only. The actual amount you can borrow will depend on your personal financial situation and subject to a full application. For a more precise estimate, please use the Mojo mortgage calculator. Your home or property may be repossessed if you do not keep up repayments on your mortgage.



.jpeg)