Guide price
£185,000
Land for saleAbbotts Court, Outwell, Wisbech PE14
4 beds
Auction
About this property
***for sale as one lot***
Two adjacent land parcels with planning permission
Sold via Modern Method of Auction (T&c's Apply)
***for sale as one lot***
Two adjacent land parcels with planning permission
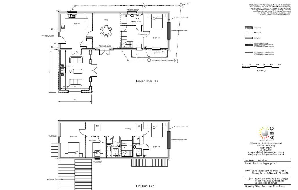
• 1 x 4-bedroom barn conversion
• 1 x 3-bedroom detached new build barn style property
The two plots are to be sold together only and comprise of the following:
Unit Sizes
• Barn conversion gia 2,430 sq. Ft
• New Build Barn gia 2,502 sq. Ft
Location
The plots are located off Robbs Chase Outwell PE14 8SF. Robbs Chase is a quiet, residential cul-de-sac located in the well-regarded village of Outwell, Norfolk - strategically positioned near the Cambridgeshire border, just 4 miles from Wisbech and 20 miles from Peterborough. This well-connected rural location offers strong development potential with a blend of countryside appeal and regional accessibility.
Planning
The local planning authority is King’s Lynn & West Norfolk
Planning references and links to planning application
1. Barn Conversion - Barn Adjacent to Woodhall, Robbs Chase, Outwell Norfolk. Change of use, alterations and extension of barn to form a 4 bedroom dwelling, and the construction of a double garage with hobby room over Ref 21/01880/F Decision date issued Thu 24 Feb 2022
2. New Build Barn Style Dwelling - Land W of Woodhall Robbs Chase Outwell Norfolk Reserved Matters Application for approval of the appearance, landscaping, layout and scale of one dwelling Ref 24/01033/rm Decision date issued Wed 07 Aug 2024
Data Room
We have provided key documentation in a data room to include planning information, sales pricing, images, land registry, architect’s plans. To access corresponding documents, images and other information please contact Abbotts.
Land Registry
Barn Conversion - Part of Title No. NK301688
(Red line of land parcel to be drawn up and provided for TR1)
New Build Barn - Title No. NK104445
Land title documents can be found in the data room.
Cil
Cil liability notice for the new build unit can be found in the data room
Sale
We are inviting offers on an unconditional basis for both plots as one lot.
Tenure
The plots will be sold Freehold with vacant possession.
VAT
We have assumed that sites are not elected for VAT.
Services
We have not undertaken any specific enquiries of the relevant service companies. We understand that all mains’ services are available or accessible within the vicinity
Viewing & Further Information
Viewings are strictly by appointment only.
This property is for sale by the Modern Method of Auction, meaning the buyer and seller are to Complete within 56 days (the "Reservation Period"). Interested parties personal data will be shared with the Auctioneer (I am Sold).
If considering buying with a mortgage, inspect and consider the property carefully with your lender before bidding.
A Buyer Information Pack is provided. The winning bidder will pay £349.00 including VAT for this pack which you must view before bidding.
The buyer signs a Reservation Agreement and makes payment of a non-refundable Reservation Fee of 4.5% of the purchase price including VAT, subject to a minimum of £6,600.00 including VAT. This is paid to reserve the property to the buyer during the Reservation Period and is paid in addition to the purchase price. This is considered within calculations for Stamp Duty Land Tax.
Services may be recommended by the Agent or Auctioneer in which they will receive payment from the service provider if the service is taken. Any payment that will be received by the Agent or Auctioneer will be confirmed to you in writing before services are taken. Services are optional.
Two adjacent land parcels with planning permission
• 1 x 4-bedroom barn conversion
• 1 x 3-bedroom detached new build barn style property
The two plots are to be sold together only and comprise of the following:
Unit Sizes
• Barn conversion gia 2,430 sq. Ft
• New Build Barn gia 2,502 sq. Ft
Location
The plots are located off Robbs Chase Outwell PE14 8SF. Robbs Chase is a quiet, residential cul-de-sac located in the well-regarded village of Outwell, Norfolk - strategically positioned near the Cambridgeshire border, just 4 miles from Wisbech and 20 miles from Peterborough. This well-connected rural location offers strong development potential with a blend of countryside appeal and regional accessibility.
Planning
The local planning authority is King’s Lynn & West Norfolk
Planning references and links to planning application
1. Barn Conversion - Barn Adjacent to Woodhall, Robbs Chase, Outwell Norfolk. Change of use, alterations and extension of barn to form a 4 bedroom dwelling, and the construction of a double garage with hobby room over Ref 21/01880/F Decision date issued Thu 24 Feb 2022
2. New Build Barn Style Dwelling - Land W of Woodhall Robbs Chase Outwell Norfolk Reserved Matters Application for approval of the appearance, landscaping, layout and scale of one dwelling Ref 24/01033/rm Decision date issued Wed 07 Aug 2024
Data Room
We have provided key documentation in a data room to include planning information, sales pricing, images, land registry, architect’s plans. To access corresponding documents, images and other information please contact Abbotts.
Land Registry
Barn Conversion - Part of Title No. NK301688
(Red line of land parcel to be drawn up and provided for TR1)
New Build Barn - Title No. NK104445
Land title documents can be found in the data room.
Cil
Cil liability notice for the new build unit can be found in the data room
Sale
We are inviting offers on an unconditional basis for both plots as one lot.
Tenure
The plots will be sold Freehold with vacant possession.
VAT
We have assumed that sites are not elected for VAT.
Services
We have not undertaken any specific enquiries of the relevant service companies. We understand that all mains’ services are available or accessible within the vicinity
Viewing & Further Information
Viewings are strictly by appointment only.
This property is for sale by the Modern Method of Auction, meaning the buyer and seller are to Complete within 56 days (the "Reservation Period"). Interested parties personal data will be shared with the Auctioneer (I am Sold).
If considering buying with a mortgage, inspect and consider the property carefully with your lender before bidding.
A Buyer Information Pack is provided. The winning bidder will pay £349.00 including VAT for this pack which you must view before bidding.
The buyer signs a Reservation Agreement and makes payment of a non-refundable Reservation Fee of 4.5% of the purchase price including VAT, subject to a minimum of £6,600.00 including VAT. This is paid to reserve the property to the buyer during the Reservation Period and is paid in addition to the purchase price. This is considered within calculations for Stamp Duty Land Tax.
Services may be recommended by the Agent or Auctioneer in which they will receive payment from the service provider if the service is taken. Any payment that will be received by the Agent or Auctioneer will be confirmed to you in writing before services are taken. Services are optional.
Mortgage calculator
Monthly repayment
£925 per month
Whole of market comparison
70+ lenders and 10,000+ products
The monthly repayments provided are estimates and should be used as a guide only. The actual amount you can borrow will depend on your personal financial situation and subject to a full application. For a more precise estimate, please use the Mojo mortgage calculator. Your home or property may be repossessed if you do not keep up repayments on your mortgage.
More information
Tenure
Council tax band
A band has not yet been confirmed.



.png)