Offers in region of
£150,000
Land for saleBernard Road, Brampton, Huntingdon PE28
About this property
Well Positioned Individual Residential Building Plot
Ideal Self Build Opportunity
Planning Reference 22/02143/out
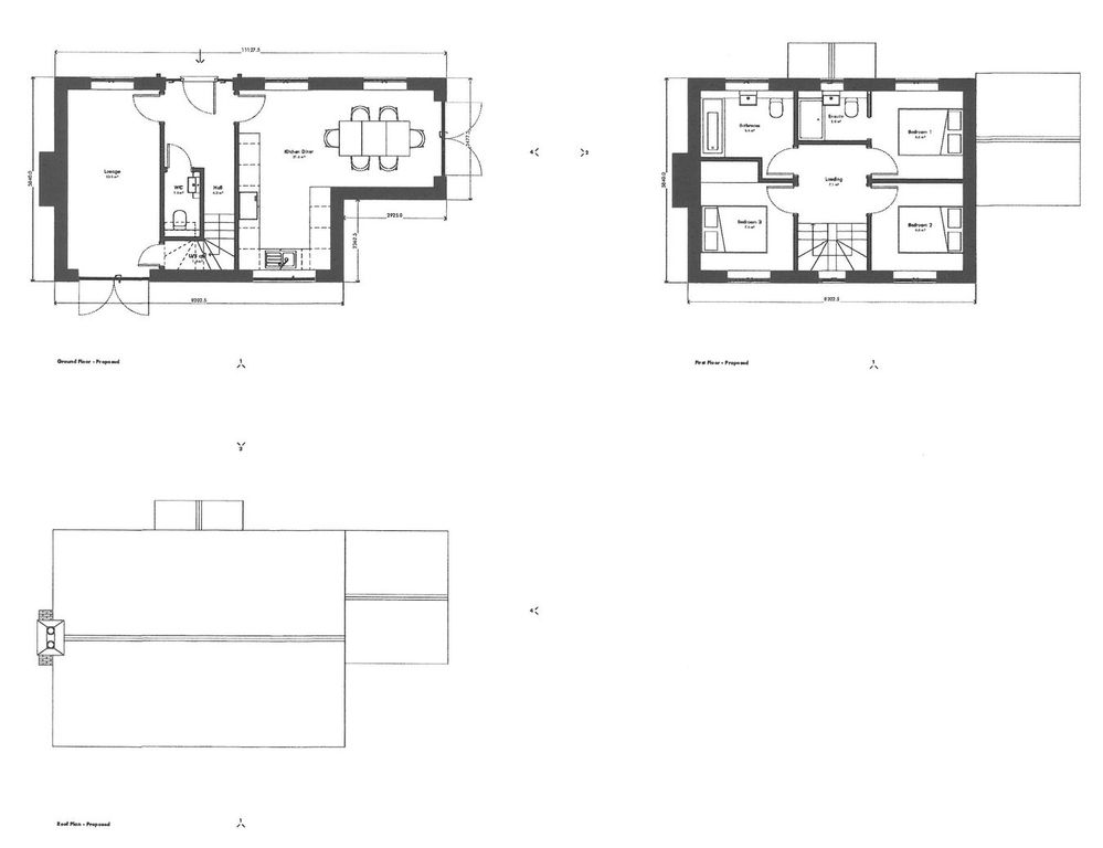
Outline Planning Consent For A Single Three Bedroom Detached Dwelling
Desirable Village Location
Close To Village Green And Village Services
All Plans And Information Are Available At Huntingdon District Council Planning Portal
Disabled features
Located close to the village green and a range of local services, this plot benefits from an enviable position within the village. Brampton is renowned for its strong community spirit and array of amenities including shops, cafes, and schools, making it a highly sought-after location for families and professionals alike.
The outline planning permission (Planning Reference 22/02143/out) granted by Huntingdon District Council provides clear guidelines and reassurance for prospective builders. Approval is in place for a thoughtfully designed three-bedroom detached dwelling, perfectly complementing the character of the surrounding homes while allowing for flexibility in the final design and layout. This makes the plot ideal for self-builders or developers looking to bring a bespoke residential property to life.
All plans and detailed information relating to the planning consent, including conditions and documentation, are readily accessible via the Huntingdon District Council Planning Portal. This transparency ensures that potential purchasers can easily review and understand the scope of development permitted and make informed decisions regarding their investment.
Don’t miss the chance to secure this individual plot and embark on a rewarding building project in a well regarded village location.
Description
A rare opportunity to acquire an individual building plot centrally located within this ever popular village setting. Close to the village green and primary school, the plot occupies a desirable and appealing location.
Planning
Outline planning permission has been granted for an individual three bedroom detached home over two storeys.
Tenure
Freehold with vacant possession upon completion.
Purchasers will be liable to pay the cil - Community Infrastructure Levy - to Huntingdon District Council at the standard rate of £85.00 per square metre.
Mortgage calculator
£750 per month
70+ lenders and 10,000+ products
The monthly repayments provided are estimates and should be used as a guide only. The actual amount you can borrow will depend on your personal financial situation and subject to a full application. For a more precise estimate, please use the Mojo mortgage calculator. Your home or property may be repossessed if you do not keep up repayments on your mortgage.



.png)