£500,000
Land for saleLeys Hill Walford HR9
About this property
Prime freehold development plot on Leys Hill, a highly regarded rural address
A rare opportunity to create two high quality contemporary homes
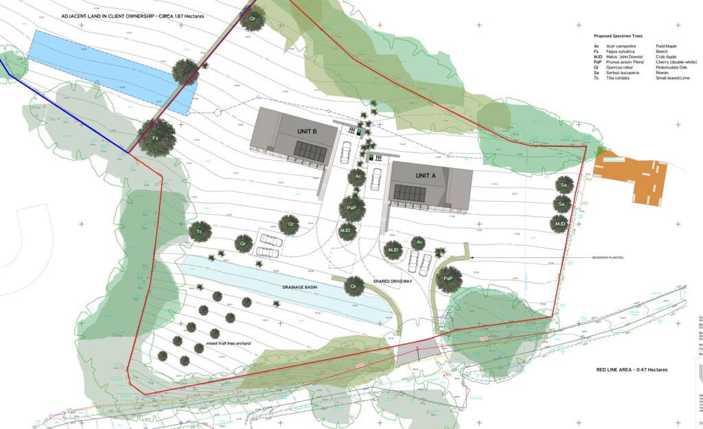
Full planning permission granted (Ref. P240309/F) for two detached residences
Each proposed home extends to approx. 1,969 sq ft of well planned accommodation
Architect designed scheme responding sensitively to the rural landscape
Contemporary open plan living with extensive glazing and countryside views
Flexible layouts suitable for modern family life and home working
Private parking, landscaped gardens and defined plot boundaries
Peaceful rural position close to the Wye Valley Area
Set within a highly regarded elevated position on the outskirts of Walford, the site provides a superb canvas for two substantial, design led homes. The approved proposals have been thoughtfully conceived to work with the landscape, incorporating clean architectural lines and extensive glazing to maximise natural light and showcase the far reaching countryside views. Led homes. The approved reaching countryside views.
Both dwellings are arranged over two floors with open plan kitchen, dining and living spaces forming the social heart of each home. Generous proportions, strong indoor-outdoor connections and flexible room layouts create an environment well-suited to contemporary family living, entertaining and home working. The accommodation is complemented by landscaped gardens, private parking and clearly defined plot boundaries, ensuring both separation and an overall sense of openness across the site. Plan kitchen, dining and living spaces forming the social heart of each home. Generous proportions, strong indoor-outdoor connections and flexible room layouts create an environment well suited to contemporary family living, entertaining and home working. The accommodation is complemented by landscaped gardens, private parking and clearly defined plot boundaries, ensuring both separation and an overall sense of openness across the site.
Opportunities to secure development land of this calibre in such an established rural setting are increasingly scarce. This plot offers a compelling prospect for those wishing to deliver two high specification new homes in a location known for its beauty, tranquillity and enduring long term desirability. Specification new homes in a location known for its beauty, tranquillity and enduring long term desirability.
The scheme is offered with the benefit of the approved plans and subject to the relevant planning conditions.
Location:
Elevated Rural Living Close to the Wye Valley Area of Outstanding Natural Beauty
Leys Hill enjoys a particularly attractive position on the edge of Walford, combining peaceful countryside surroundings with excellent accessibility. The area lies close to the Wye Valley Area of Outstanding Natural Beauty - a landscape celebrated for its dramatic scenery, wooded valleys and riverside paths
.
The popular market town of Ross on Wye is just a short distance away, offering independent shops, cafés, restaurants, schools and a vibrant community spirit. Transport connections are a key advantage, with direct access to the A40 providing routes to Hereford, Monmouth and Gloucester, and onward links to the M50 and M5 for travel to the Midlands, Bristol and South Wales. Rail services in the surrounding area offer further connectivity. On Wye is just a short distance away, offering independent shops, cafés, restaurants, schools and a vibrant community spirit. Transport connections are a key advantage, with direct access to the A40 providing routes to Hereford, Monmouth and Gloucester, and onward links to the M50 and M5 for travel to the Midlands, Bristol and South Wales. Rail services in the surrounding area offer further connectivity.
Leys Hill strikes the perfect balance - rural living, uninterrupted views, and effortless access to amenities and transport networks.
Additional Land
An extra 1.3 acres is available by separate negotiation at £100,000. Full details are available from the agent.
Services
Mains electricity and water are available for connection. Air Source Heat Pumps are proposed for each dwelling. Drainage to connect to a private system. Interested parties should undertake their own enquiries.
Planning
Full planning consent granted by Herefordshire Council: P240309/F.
Tenure
Freehold with vacant possession on completion.
Mortgage calculator
£2,501 per month
70+ lenders and 10,000+ products
The monthly repayments provided are estimates and should be used as a guide only. The actual amount you can borrow will depend on your personal financial situation and subject to a full application. For a more precise estimate, please use the Mojo mortgage calculator. Your home or property may be repossessed if you do not keep up repayments on your mortgage.



.png)