Offers over
£175,000
Land for saleWandle Road, Wallington SM6
Freehold
About this property
Located on Wandle Road, the property benefits from excellent access to local shops and amenities. Hackbridge mainline station (Zone 4) is just a short walk away, providing fast and frequent services into Central London. Nearby green spaces include Beddington Park and the Wandle Trail.
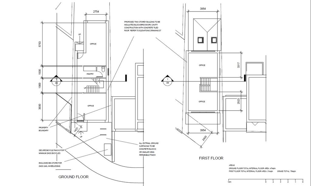
The site is offered to the market with planning consent for the construction of a detached two-storey office building. Following a recent downgrade of the site’s Flood Risk classification, residential development may now be considered, subject to obtaining the necessary planning consent.
The land is currently let for £8,100.00 annually.
Agent’s Notes: Prospective purchasers should note that buyer’s fees apply.
Directions
Call for directions
Transport
Hackbridge Station
The site is offered to the market with planning consent for the construction of a detached two-storey office building. Following a recent downgrade of the site’s Flood Risk classification, residential development may now be considered, subject to obtaining the necessary planning consent.
The land is currently let for £8,100.00 annually.
Agent’s Notes: Prospective purchasers should note that buyer’s fees apply.
Directions
Call for directions
Transport
Hackbridge Station
Mortgage calculator
Monthly repayment
£875 per month
Whole of market comparison
70+ lenders and 10,000+ products
The monthly repayments provided are estimates and should be used as a guide only. The actual amount you can borrow will depend on your personal financial situation and subject to a full application. For a more precise estimate, please use the Mojo mortgage calculator. Your home or property may be repossessed if you do not keep up repayments on your mortgage.



.png)