From
£350,000
2 bed bungalow for saleSea Road, East Sussex TN36
2 beds
1 bath
1 reception
EPC Rating: E
About this property
Immediate ‘exchange of contracts’ available
Being sold via ‘Secure Sale’
Prime riverside setting bordering the River Brede with Mooring and fishing rights
Planning permission granted (Ref: Rr/2018/1690/P) with works commenced
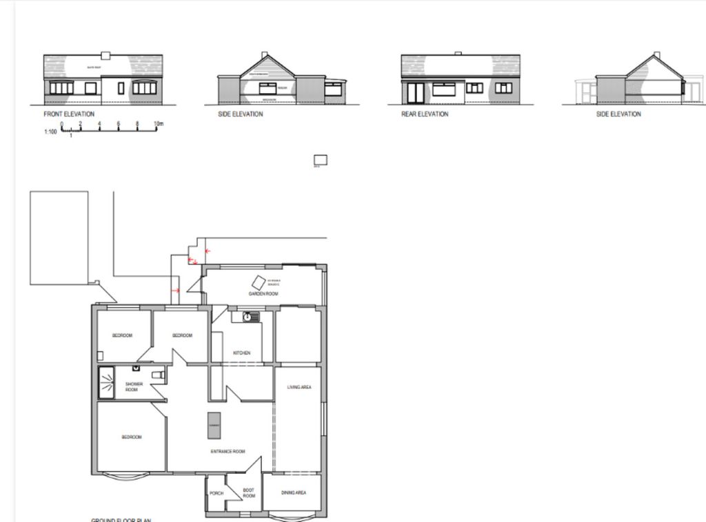
Substantial detached bungalow on a generous plot
Large open-plan reception/kitchen/study with two double bedrooms, one with snug/dressing room
Front and rear gardens backing onto the river
Far-reaching countryside views
Detached outbuilding/garage and summerhouse
Off-road parking for two to three vehicles
Set within a highly sought-after riverside position bordering the tranquil River Brede, this substantial detached bungalow presents a rare opportunity to create an exceptional waterside home. Enjoying mooring and fishing rights and far-reaching views across open farmland, the property occupies a generous plot and offers immense scope for transformation, with planning permission granted and works already commenced.
Planning permission (Ref: Rr/2018/1690/P) allows for the removal of the existing front addition and the creation of an impressive rear extension, together with a new enlarged roof incorporating front and rear dormers and a rear balcony-designed to fully embrace the surrounding landscape and river setting.
Currently arranged to provide a spacious open-plan reception, kitchen and study area, the accommodation includes two double bedrooms, one benefitting from a snug/dressing room, and a contemporary shower room. While requiring full refurbishment and updating, the property already hints at the lifestyle on offer-open, light-filled living spaces with seamless connections to the outdoors.
Outside, the gardens are a particular highlight. The rear garden backs directly onto the river, providing an idyllic setting for al fresco dining, boating and fishing, while the outlook across neighbouring countryside enhances the sense of privacy and escape. Additional features include a detached outbuilding/garage, a summerhouse, and off-road parking for two to three vehicles.
This is an exciting and rare riverside lifestyle project, combining planning certainty, an enviable location and exceptional potential to create a bespoke home in one of the area’s most desirable settings.
Auctioneers Additional Comments:
Pattinson Auction are working in Partnership with the marketing agent on this online auction sale and are referred to below as 'The Auctioneer'.
This auction lot is being sold either under conditional (Modern) or unconditional (Traditional) auction terms and overseen by the auctioneer in partnership with the marketing agent. The property is available to be viewed strictly by appointment only via the Marketing Agent or The Auctioneer. Bids can be made via the Marketing Agents or via The Auctioneers website.
Please be aware that any enquiry, bid or viewing of the subject property will require your details being shared between both any marketing agent and The Auctioneer in order that all matters can be dealt with effectively.
The property is being sold via a transparent online auction.
In order to submit a bid upon any property being marketed by The Auctioneer, all bidders/buyers will be required to adhere to a verification of identity process in accordance with Anti Money Laundering procedures. Bids can be submitted at any time and from anywhere.
Our verification process is in place to ensure that aml procedure are carried out in accordance with the law.
The advertised price is commonly referred to as a ‘Starting Bid’ or ‘Guide Price’ and is accompanied by a ‘Reserve Price’. The ‘Reserve Price’ is confidential to the seller and the auctioneer and will typically be within a range above or below 10% of the ‘Guide Price’ / ‘Starting Bid’.
These prices are subject to change.
An auction can be closed at any time with the auctioneer permitting for the property (the lot) to be sold prior to the end of the auction.
A Legal Pack associated with this particular property is available to view upon request and contains details relevant to the legal documentation enabling all interested parties to make an informed decision prior to bidding. The Legal Pack will also outline the buyers’ obligations and sellers’ commitments. It is strongly advised that you seek the counsel of a solicitor prior to proceeding with any property and/or Land Title purchase. Auctioneers
Additional Comments:
In order to secure the property and ensure commitment from the seller, upon exchange of contracts the successful bidder will be expected to pay a non-refundable deposit equivalent to 5% of the purchase price of the property. The deposit will be a contribution to the purchase price. A non-refundable reservation fee up to 6% inc VAT (subject to a minimum which could be up to £7,200 inc VAT) is also required to be paid upon agreement of sale. The Reservation Fee is in addition to the agreed purchase price and consideration should be made by the purchaser in relation to any Stamp Duty Land Tax liability associated with overall purchase costs. Both the Marketing Agent and The Auctioneer may believe necessary or beneficial to the customer to pass their details to third party service suppliers, from which a referral fee may be obtained. There is no requirement or indeed obligation to use these recommended suppliers or services.
Please note - images have been ai enhanced
Mortgage calculator
£1,750 per month
70+ lenders and 10,000+ products
The monthly repayments provided are estimates and should be used as a guide only. The actual amount you can borrow will depend on your personal financial situation and subject to a full application. For a more precise estimate, please use the Mojo mortgage calculator. Your home or property may be repossessed if you do not keep up repayments on your mortgage.



.png)