Guide price
£1,595,000
5 bed detached house for saleValley Road, Rickmansworth WD3
5 beds
6 baths
5 receptions
EPC Rating: E
Freehold
About this property
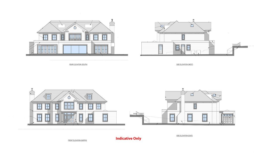
A rare opportunity to acquire a 0.409 acre plot of land with planning granted for construction of a 5 bedroom, 6 bathrooms, 5 reception room detached home, arranged over three floors & totalling approximately 6,781.32sqft. Plans can be viewed on Three Rivers District Council website. Planning reference ref: 25/0999/ful.
The existing planning permission designed by a well-regarded local architect, Jack Dusek & Co, includes provision for several elegant reception rooms, a grand open-plan kitchen/dining/family area, and additional ancillary spaces.
Cil (Community Infrastructure Levy & Mayoral Charge)
Any purchaser who constructs the property, in line with the planning application, will have an obligation to pay the charges imposed by way of a cil. The buyer(s) are advised to make their own enquiries via their own representatives. Three Rivers District Council Affordable Housing Contribution differs from other local authorities. We advise that one must make their own enquiries via their consultants.
Boundaries & fencing positions
We have not undertaken a detailed survey of any of the boundaries. Buyer(s) are advised to make their own enquiries via their own representatives.
Tree preservation orders (tpo's)
We understand a number of the trees on the site are subject to TPO's. Interested parties should make their own enquires with the local authority
contamination & soil survey
We have not carried out a land contamination survey. Interested parties should make their own enquiries.
Please note: The images/drawings are artist's impressions (CGI’s) and are not scale and indicative only. The architect drawings have been supplied by a 3rd party. Therefore, accuracy cannot be guaranteed or warranted. The plans are not to scale and indicative only. The buyer(s) are advised to obtain verification from their own advisers, be that a solicitor or surveyor. The plans should be used for general guidance only and do not constitute, in whole or in part, an offer or contract. Any intending purchaser should satisfy themselves.
By inspection, searches, enquiries and full survey as to the correctness of each statement. Any areas, measurements or distances quoted are approximate and should not be used to value a property.
Rickmansworth town centre has a wide range of boutique shops, coffee houses, restaurants and major supermarkets. The Metropolitan and Chiltern line train services connect you to London Baker Street, Marylebone Station and beyond. The M25 motorway is available at both junction 17 and 18, connecting you to the national motorway network. Major London airports are also within reach. The area is wellserved for good quality private and state schools for all ages. Chorleywood and Rickmansworth offer everything for the sporting individual from rugby, cricket, football, tennis, horse riding and golf. Rickmansworth Aquadrome is an ideal setting for walks, sailing, fishing and water skiing.
Tenure: Freehold
Local Authority: Three Rivers District Council
The existing planning permission designed by a well-regarded local architect, Jack Dusek & Co, includes provision for several elegant reception rooms, a grand open-plan kitchen/dining/family area, and additional ancillary spaces.
Cil (Community Infrastructure Levy & Mayoral Charge)
Any purchaser who constructs the property, in line with the planning application, will have an obligation to pay the charges imposed by way of a cil. The buyer(s) are advised to make their own enquiries via their own representatives. Three Rivers District Council Affordable Housing Contribution differs from other local authorities. We advise that one must make their own enquiries via their consultants.
Boundaries & fencing positions
We have not undertaken a detailed survey of any of the boundaries. Buyer(s) are advised to make their own enquiries via their own representatives.
Tree preservation orders (tpo's)
We understand a number of the trees on the site are subject to TPO's. Interested parties should make their own enquires with the local authority
contamination & soil survey
We have not carried out a land contamination survey. Interested parties should make their own enquiries.
Please note: The images/drawings are artist's impressions (CGI’s) and are not scale and indicative only. The architect drawings have been supplied by a 3rd party. Therefore, accuracy cannot be guaranteed or warranted. The plans are not to scale and indicative only. The buyer(s) are advised to obtain verification from their own advisers, be that a solicitor or surveyor. The plans should be used for general guidance only and do not constitute, in whole or in part, an offer or contract. Any intending purchaser should satisfy themselves.
By inspection, searches, enquiries and full survey as to the correctness of each statement. Any areas, measurements or distances quoted are approximate and should not be used to value a property.
Rickmansworth town centre has a wide range of boutique shops, coffee houses, restaurants and major supermarkets. The Metropolitan and Chiltern line train services connect you to London Baker Street, Marylebone Station and beyond. The M25 motorway is available at both junction 17 and 18, connecting you to the national motorway network. Major London airports are also within reach. The area is wellserved for good quality private and state schools for all ages. Chorleywood and Rickmansworth offer everything for the sporting individual from rugby, cricket, football, tennis, horse riding and golf. Rickmansworth Aquadrome is an ideal setting for walks, sailing, fishing and water skiing.
Tenure: Freehold
Local Authority: Three Rivers District Council
Mortgage calculator
Monthly repayment
£7,978 per month
Whole of market comparison
70+ lenders and 10,000+ products
The monthly repayments provided are estimates and should be used as a guide only. The actual amount you can borrow will depend on your personal financial situation and subject to a full application. For a more precise estimate, please use the Mojo mortgage calculator. Your home or property may be repossessed if you do not keep up repayments on your mortgage.



.png)