Offers in region of
£399,999
3 bed semi-detached bungalow for saleSpringhill Lane, Lower Penn, Wolverhampton WV4
3 beds
1 bath
1 reception
EPC Rating: D
Freehold
About this property
Planning for four bedroom detached dwelling
Approved planning permission from South Staffordshire Council
Countryside views
Rare and unique opportunity
Viewing is highly recommended
24/00431/ful
Summary
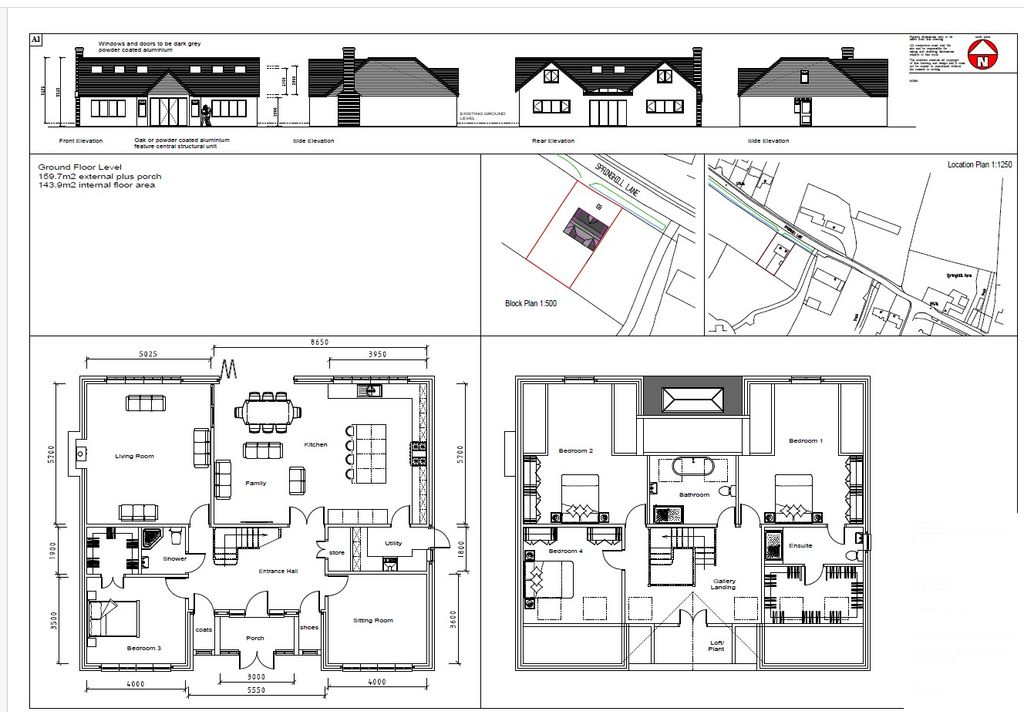
A rare and unique opportunity to purchase two semi-detached bungalows set on approximately 0.25 acres in the sought-after area of lower penn, with approved planning permission to demolish and rebuild A four bedroom detached property.
Description
Connells Wolverhampton are pleased to bring to market this rare and unique opportunity to purchase two semi-detached bungalows with approved planning permission to demolish and re-erect a four bedroom detached property. Planning permission has been granted under 24/00431/ful.
Once complete the property would comprise of entrance porch, large entrance hall, living room, sitting room, large entertainment kitchen diner with adjoining pantry/ utility, downstairs bedroom with dressing room and a downstairs shower room. On the first floor there is three bedrooms, dressing areas and a family bathroom.
Externally there are generous front, side and rear gardens with far reaching countryside views.
Viewing is highly recommended to appreciate the opportunity being offered.
Location And Area
Situated off the main Penn Road offering fantastic commuting access to Wolverhampton City centre, Stourbridge, Kidderminster and many other close areas. There is a wonderful selection of schooling nearby along with local shops on the Penn Road.
1. Money laundering regulations - Intending purchasers will be asked to produce identification documentation at a later stage and we would ask for your co-operation in order that there will be no delay in agreeing the sale.
2: These particulars do not constitute part or all of an offer or contract.
3: The measurements indicated are supplied for guidance only and as such must be considered incorrect.
4: Potential buyers are advised to recheck the measurements before committing to any expense.
5: Connells has not tested any apparatus, equipment, fixtures, fittings or services and it is the buyers interests to check the working condition of any appliances.
6: Connells has not sought to verify the legal title of the property and the buyers must obtain verification from their solicitor.
A rare and unique opportunity to purchase two semi-detached bungalows set on approximately 0.25 acres in the sought-after area of lower penn, with approved planning permission to demolish and rebuild A four bedroom detached property.
Description
Connells Wolverhampton are pleased to bring to market this rare and unique opportunity to purchase two semi-detached bungalows with approved planning permission to demolish and re-erect a four bedroom detached property. Planning permission has been granted under 24/00431/ful.
Once complete the property would comprise of entrance porch, large entrance hall, living room, sitting room, large entertainment kitchen diner with adjoining pantry/ utility, downstairs bedroom with dressing room and a downstairs shower room. On the first floor there is three bedrooms, dressing areas and a family bathroom.
Externally there are generous front, side and rear gardens with far reaching countryside views.
Viewing is highly recommended to appreciate the opportunity being offered.
Location And Area
Situated off the main Penn Road offering fantastic commuting access to Wolverhampton City centre, Stourbridge, Kidderminster and many other close areas. There is a wonderful selection of schooling nearby along with local shops on the Penn Road.
1. Money laundering regulations - Intending purchasers will be asked to produce identification documentation at a later stage and we would ask for your co-operation in order that there will be no delay in agreeing the sale.
2: These particulars do not constitute part or all of an offer or contract.
3: The measurements indicated are supplied for guidance only and as such must be considered incorrect.
4: Potential buyers are advised to recheck the measurements before committing to any expense.
5: Connells has not tested any apparatus, equipment, fixtures, fittings or services and it is the buyers interests to check the working condition of any appliances.
6: Connells has not sought to verify the legal title of the property and the buyers must obtain verification from their solicitor.
Mortgage calculator
Monthly repayment
£2,000 per month
Whole of market comparison
70+ lenders and 10,000+ products
The monthly repayments provided are estimates and should be used as a guide only. The actual amount you can borrow will depend on your personal financial situation and subject to a full application. For a more precise estimate, please use the Mojo mortgage calculator. Your home or property may be repossessed if you do not keep up repayments on your mortgage.



.png)