Guide price
£650,000
6 bed detached bungalow for saleRunnymede Road, Darras Hall, Ponteland NE20
6 beds
3 baths
2 receptions
EPC Rating: D
Freehold
About this property
Development opportunity
Planning for new 6 bed house
Around 0.25 acres
Currently with a six bed bungalow
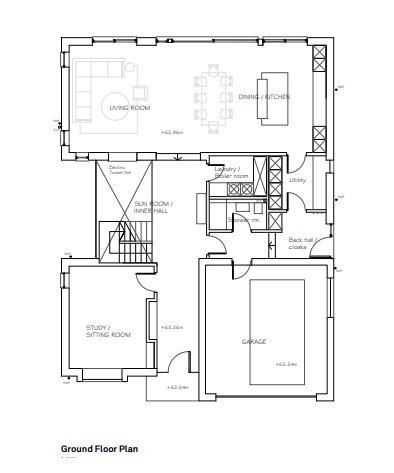
Development opportunity - runnymede road. Planning Permission has been granted for a New Build, Three storey, 6 Bedroom House.Currently there is a dormer bungalow on the 0.25 Acre site which will require the purchaser to demolish prior to building. Northumberland Planning Reference 21/04439/FULThe setting of this property is at the village end of Runnymede Road, well placed for Ponteland's excellent amenities, including schools for all ages, a wide range of shops such as Waitrose, excellent choice of pubs and restaurants and a variety of sports clubs including golf, rugby, football, cricket, bowls and tennis.
Mortgage calculator
Monthly repayment
£3,251 per month
Whole of market comparison
70+ lenders and 10,000+ products
The monthly repayments provided are estimates and should be used as a guide only. The actual amount you can borrow will depend on your personal financial situation and subject to a full application. For a more precise estimate, please use the Mojo mortgage calculator. Your home or property may be repossessed if you do not keep up repayments on your mortgage.



.png)