Guide price
£750,000
(£846/sq. ft)
2 bed detached bungalow for saleHendon Wood Lane, London NW7
2 beds
1 bath
2 receptions
887 sq. ft
EPC Rating: E
Just added
Chain free
Freehold
About this property
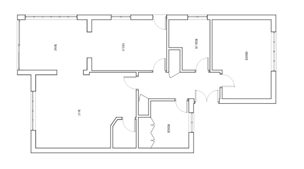
Detached bungalow
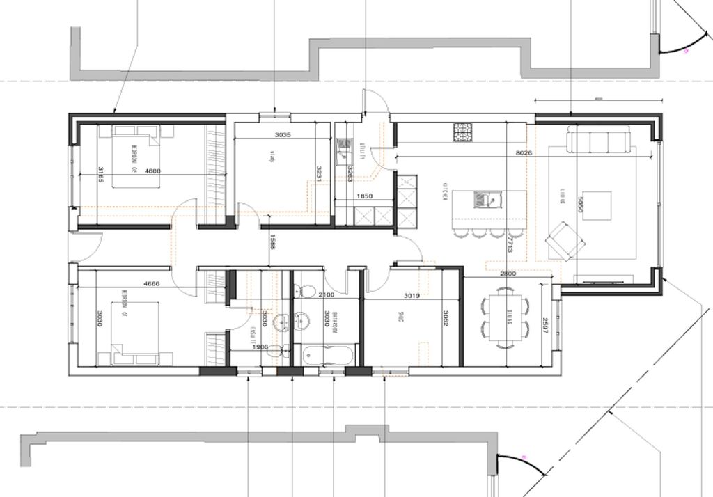
Planning permission granted
Currently two bedrooms & two reception rooms
Close to A1 for access into london and out to M25
Requires complete refurbishment
Double doors leading into entrance hall : Cupboard housing warm air boiler (not working), storage cupboard, power points, access to loft.
Reception room : Window overlooking rear garden, laminate flooring, power points, tiled fireplace.
Reception room : Double glazed sliding doors leading onto rear garden, double glazed window to side.
Kitchen : Base and eye level units, gas hob, oven, stainless steel sink and drainer, door leading onto side access, window.
Bedroom : Window overlooking front, laminate flooring, built in wardrobes.
Bedroom : Window overlooking front, laminate flooring, built in wardrobes.
Bathroom : Low level flush WC, pedestal wash hand basin, bath, shower cubicle, frosted window.
Rear garden : Initial paved patio area, mainly laid to lawn with shrub borders, shed to rear.
Front of property : Off street parking for several vehicles, lawned area with shrubs.
EPC Rating: E
Reception room : Window overlooking rear garden, laminate flooring, power points, tiled fireplace.
Reception room : Double glazed sliding doors leading onto rear garden, double glazed window to side.
Kitchen : Base and eye level units, gas hob, oven, stainless steel sink and drainer, door leading onto side access, window.
Bedroom : Window overlooking front, laminate flooring, built in wardrobes.
Bedroom : Window overlooking front, laminate flooring, built in wardrobes.
Bathroom : Low level flush WC, pedestal wash hand basin, bath, shower cubicle, frosted window.
Rear garden : Initial paved patio area, mainly laid to lawn with shrub borders, shed to rear.
Front of property : Off street parking for several vehicles, lawned area with shrubs.
EPC Rating: E
Mortgage calculator
Monthly repayment
£3,751 per month
Whole of market comparison
70+ lenders and 10,000+ products
The monthly repayments provided are estimates and should be used as a guide only. The actual amount you can borrow will depend on your personal financial situation and subject to a full application. For a more precise estimate, please use the Mojo mortgage calculator. Your home or property may be repossessed if you do not keep up repayments on your mortgage.



.png)