Guide price
£190,000
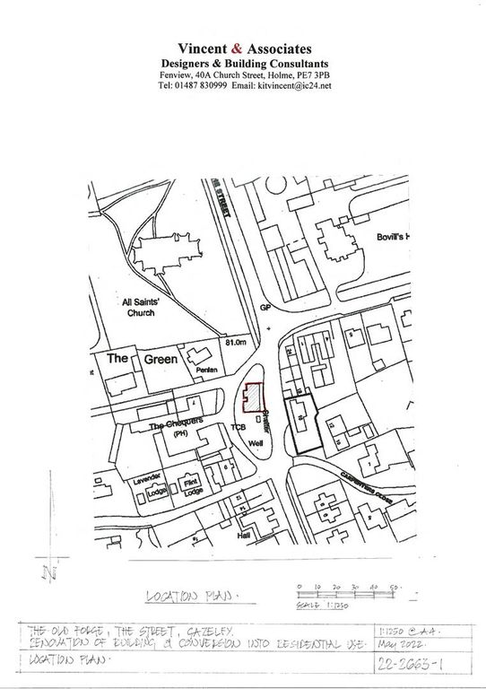
Land for saleThe Street, Gazeley CB8
Freehold
About this property
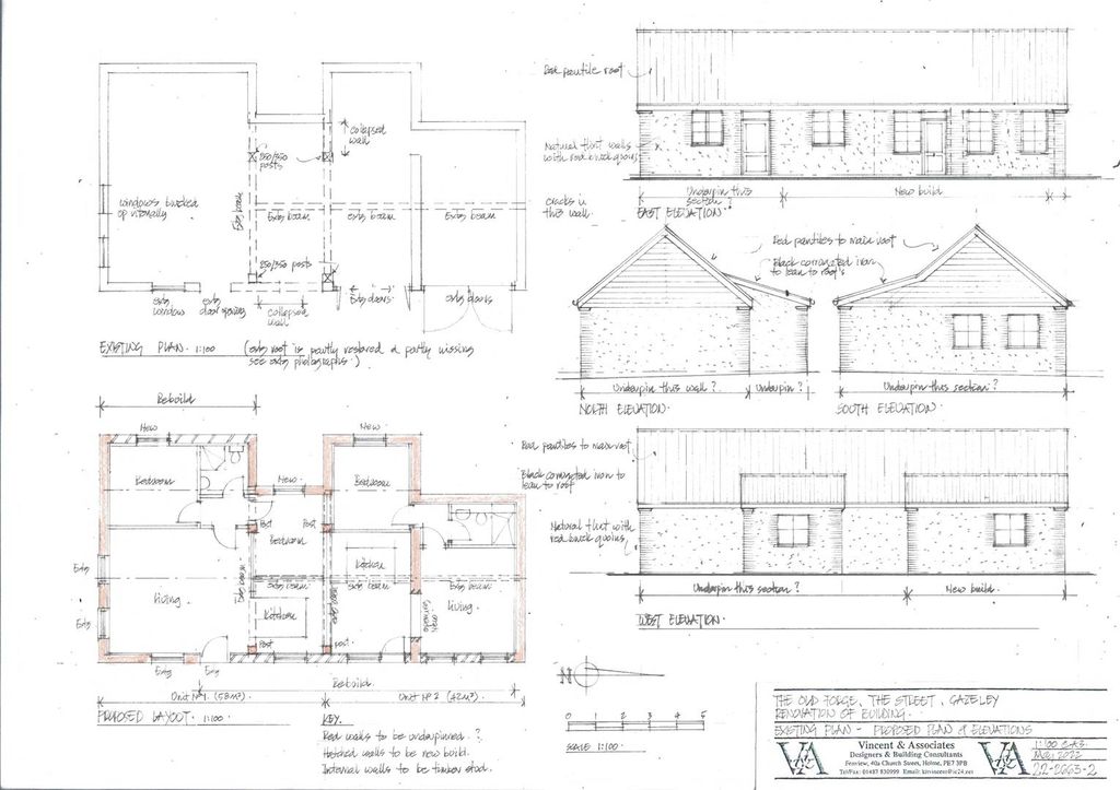
An excellent opportunity to acquire a development site with planning permission granted for the construction of two semi-detached dwellings, ideally positioned in the heart of this highly sought-after and picturesque village. The planning is to reconstruct and extend the existing and historic Blacksmith and Forge.
The proposed properties will each offer well-designed accommodation, extending to approximately 570 sq ft and 505 sq ft respectively.
For further information please contact Newmarket sales team on .
Application No: DC/22/0994/ful
The proposed properties will each offer well-designed accommodation, extending to approximately 570 sq ft and 505 sq ft respectively.
For further information please contact Newmarket sales team on .
Application No: DC/22/0994/ful
Mortgage calculator
Monthly repayment
£950 per month
Whole of market comparison
70+ lenders and 10,000+ products
The monthly repayments provided are estimates and should be used as a guide only. The actual amount you can borrow will depend on your personal financial situation and subject to a full application. For a more precise estimate, please use the Mojo mortgage calculator. Your home or property may be repossessed if you do not keep up repayments on your mortgage.



.png)