Offers in region of
£75,000
Land for saleJericho Lane, East Halton DN40
Freehold
About this property
Building plot available for a four bed detached house
Outline planning permission granted - pa/2025/223
Self build opportunity
Village location
Rare purchase opportunity
Viewing is highly advised
Energy performance rating tbc and Council tax band tbc
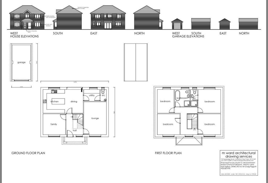
Crofts Estate Agents are delighted to bring to the market this rare opportunity to acquire a plot of land in the village of East Halton. Offered for sale with outline planning permission already granted. The plans comprise of a four bedroom detached house, with lounge, sitting room, kitchen, utility and WC to the ground floor and four bedrooms, en-suite and family bathroom to the first floor. Early interest is anticipated to be high, so we strongly encourage early registration of interest. Full details can be found using the planning reference number - pa/2025/223.
The size of the land is measure at approximately 16.5m x 20m.
The size of the land is measure at approximately 16.5m x 20m.
Mortgage calculator
Monthly repayment
£375 per month
Whole of market comparison
70+ lenders and 10,000+ products
The monthly repayments provided are estimates and should be used as a guide only. The actual amount you can borrow will depend on your personal financial situation and subject to a full application. For a more precise estimate, please use the Mojo mortgage calculator. Your home or property may be repossessed if you do not keep up repayments on your mortgage.



.png)