Offers over
£270,000
4 bed semi-detached house for saleHarvey Avenue, Newton Hall, Durham DH1
4 beds
2 baths
1 reception
About this property
Modern four-bedroom semi-detached townhouse
Approx. 1,224 sq ft internal area
Larger enclosed rear garden
Master bed with en-suite
Double Driveway and single garage
Popular residential location
Sun filled garden
Summary
Modern Four-Bedroom Semi-Detached Townhouse - Approx. 1,224 sq ft
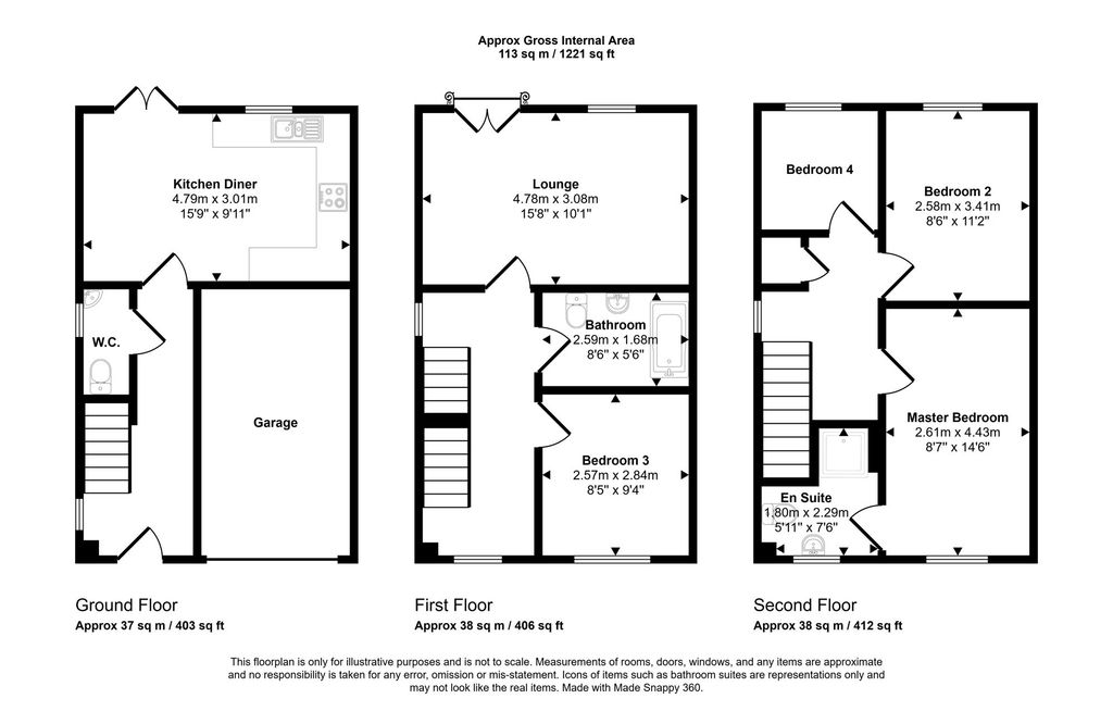
We are delighted to bring to the market this spacious and beautifully presented four-bedroom semi-detached townhouse, ideally located in a highly sought-after area of Durham. Extending to approximately 1,224 sq ft of internal accommodation, the property offers generous and versatile living space arranged over three floors, making it perfectly suited to growing families or professional buyers seeking modern, flexible living.
Upon entering the property, a welcoming hallway provides access to a convenient cloakroom/WC and an impressive open-plan kitchen/dining room. The contemporary kitchen is well equipped with ample storage and workspace and flows seamlessly into the dining area, creating an ideal setting for family meals and entertaining.
The first floor features a bright and spacious living room, filled with natural light and offering a comfortable and relaxing retreat. Also on this level is bedroom four, which would make an excellent home office or guest room, alongside a stylish family bathroom.
The top floor hosts three further well-proportioned bedrooms, including a generous master bedroom benefitting from en-suite facilities. The remaining bedrooms are served by a modern family bathroom, ensuring practicality for busy households.
A standout feature of the property is the larger-than-average enclosed rear garden, extending to approximately 50ft+ and arranged over three tiered sections. This substantial outdoor space offers excellent potential for families, outdoor entertaining, gardening enthusiasts, or future landscaping projects.
Externally, the property benefits from driveway parking to the front along with a single garage. Additional features include gas-fired central heating and double glazing throughout.
The property is conveniently located close to local neighbourhood shops and well-regarded schools, including Framwellgate Moor Primary School. Further amenities can be found at Arnison Retail Park, with comprehensive shopping, dining, and leisure facilities available in Durham City Centre, approximately three miles away. Excellent transport links are provided via the nearby A167, offering easy access north and south, making this an ideal location for commuters.
This superb home combines modern living, generous accommodation, and a highly convenient location with the added benefit of an exceptional rear garden. Early viewing is highly recommended to fully appreciate the quality and space on offer.
Council Tax Band: D
Tenure: Freehold
External Rear
Tba
Modern Four-Bedroom Semi-Detached Townhouse - Approx. 1,224 sq ft
We are delighted to bring to the market this spacious and beautifully presented four-bedroom semi-detached townhouse, ideally located in a highly sought-after area of Durham. Extending to approximately 1,224 sq ft of internal accommodation, the property offers generous and versatile living space arranged over three floors, making it perfectly suited to growing families or professional buyers seeking modern, flexible living.
Upon entering the property, a welcoming hallway provides access to a convenient cloakroom/WC and an impressive open-plan kitchen/dining room. The contemporary kitchen is well equipped with ample storage and workspace and flows seamlessly into the dining area, creating an ideal setting for family meals and entertaining.
The first floor features a bright and spacious living room, filled with natural light and offering a comfortable and relaxing retreat. Also on this level is bedroom four, which would make an excellent home office or guest room, alongside a stylish family bathroom.
The top floor hosts three further well-proportioned bedrooms, including a generous master bedroom benefitting from en-suite facilities. The remaining bedrooms are served by a modern family bathroom, ensuring practicality for busy households.
A standout feature of the property is the larger-than-average enclosed rear garden, extending to approximately 50ft+ and arranged over three tiered sections. This substantial outdoor space offers excellent potential for families, outdoor entertaining, gardening enthusiasts, or future landscaping projects.
Externally, the property benefits from driveway parking to the front along with a single garage. Additional features include gas-fired central heating and double glazing throughout.
The property is conveniently located close to local neighbourhood shops and well-regarded schools, including Framwellgate Moor Primary School. Further amenities can be found at Arnison Retail Park, with comprehensive shopping, dining, and leisure facilities available in Durham City Centre, approximately three miles away. Excellent transport links are provided via the nearby A167, offering easy access north and south, making this an ideal location for commuters.
This superb home combines modern living, generous accommodation, and a highly convenient location with the added benefit of an exceptional rear garden. Early viewing is highly recommended to fully appreciate the quality and space on offer.
Council Tax Band: D
Tenure: Freehold
External Rear
Tba
Mortgage calculator
Monthly repayment
£1,350 per month
Whole of market comparison
70+ lenders and 10,000+ products
The monthly repayments provided are estimates and should be used as a guide only. The actual amount you can borrow will depend on your personal financial situation and subject to a full application. For a more precise estimate, please use the Mojo mortgage calculator. Your home or property may be repossessed if you do not keep up repayments on your mortgage.



.png)