£400,000
Land for saleHigh Street, Cheveley, Newmarket, Cambridgeshire CB8
About this property
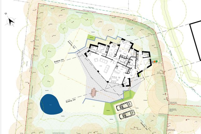
Well-located parcel of land with full planning permission for two detached dwellings
Situated in the heart of the sought-after village of Cheveley
Central High Street position close to village amenities
Attractive setting surrounded by established, quality housing
Ideal for developers, investors or bespoke self-build projects
Highly regarded village with strong community feel
Excellent connectivity to Newmarket, Cambridge, A14 and A11
Viewing strictly by appointment through the selling agents
Location
Cheveley is a picturesque and highly regarded village east of Newmarket, known for its rural charm, thriving community and easy access to surrounding towns. The village offers a peaceful setting while remaining well connected:
Newmarket – approx. 3 miles
Cambridge – approx. 17 miles
Strong links to the A14 and A11, making the location ideal for commuters.
The plot sits along the High Street, a central and desirable position close to village amenities and established residential properties.
Local Amenities
Cheveley provides a range of everyday conveniences, including:
- A highly rated primary school
- Village shop and post office
- The Red Lion pub
- Parish church and village hall
- Footpaths and nearby countryside ideal for walking and cycling
A wider selection of shopping, dining, leisure and schooling options can be found in nearby Newmarket, including rail services to Cambridge and Ipswich.
Planning Permission
Planning Ref: 18/00266/ful
Local Authority: East Cambridgeshire District Council
Viewing Arrangements
All viewings are strictly by appointment only through the selling agents. For further information or to arrange a site visit, please contact our New Homes team on opt 2)
Mortgage calculator
£2,000 per month
70+ lenders and 10,000+ products
The monthly repayments provided are estimates and should be used as a guide only. The actual amount you can borrow will depend on your personal financial situation and subject to a full application. For a more precise estimate, please use the Mojo mortgage calculator. Your home or property may be repossessed if you do not keep up repayments on your mortgage.



.png)