£325,000
4 bed semi-detached house for saleSt. Osyth Road, Clacton-On-Sea CO15
4 beds
1 bath
2 receptions
EPC Rating: D
About this property
Immaculately presented semi-detached property
Three/Four Bedrooms
Modern open plan kitchen/dining area
Versatile additional reception room/ground floor bedroom
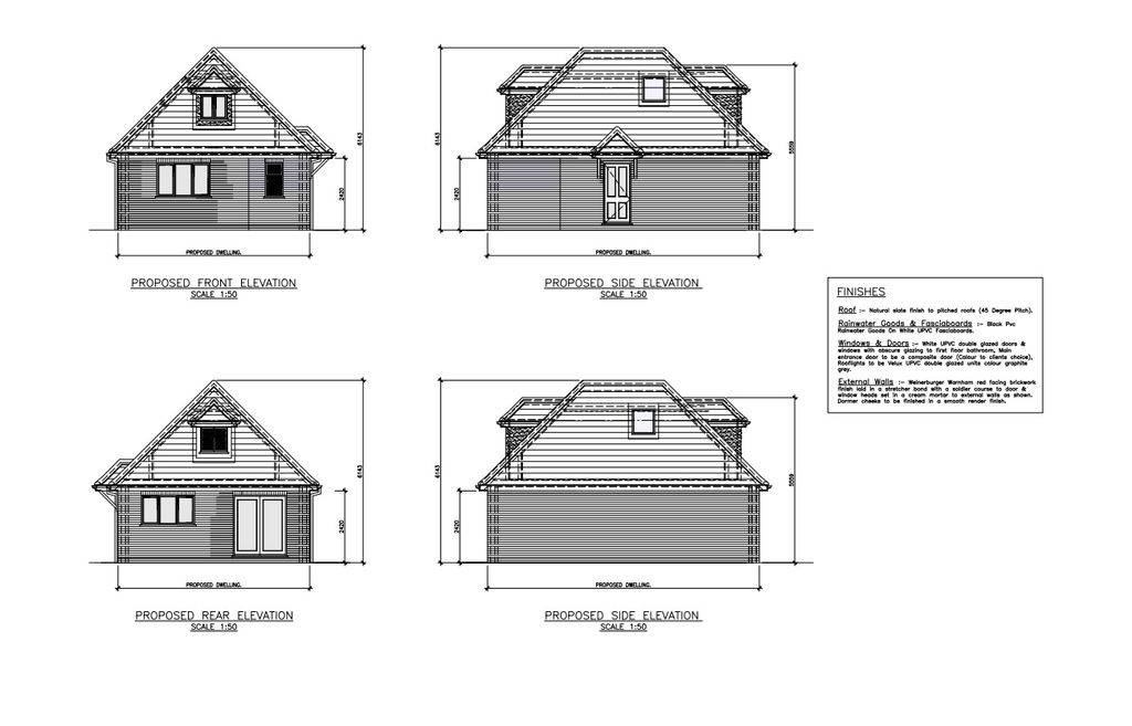
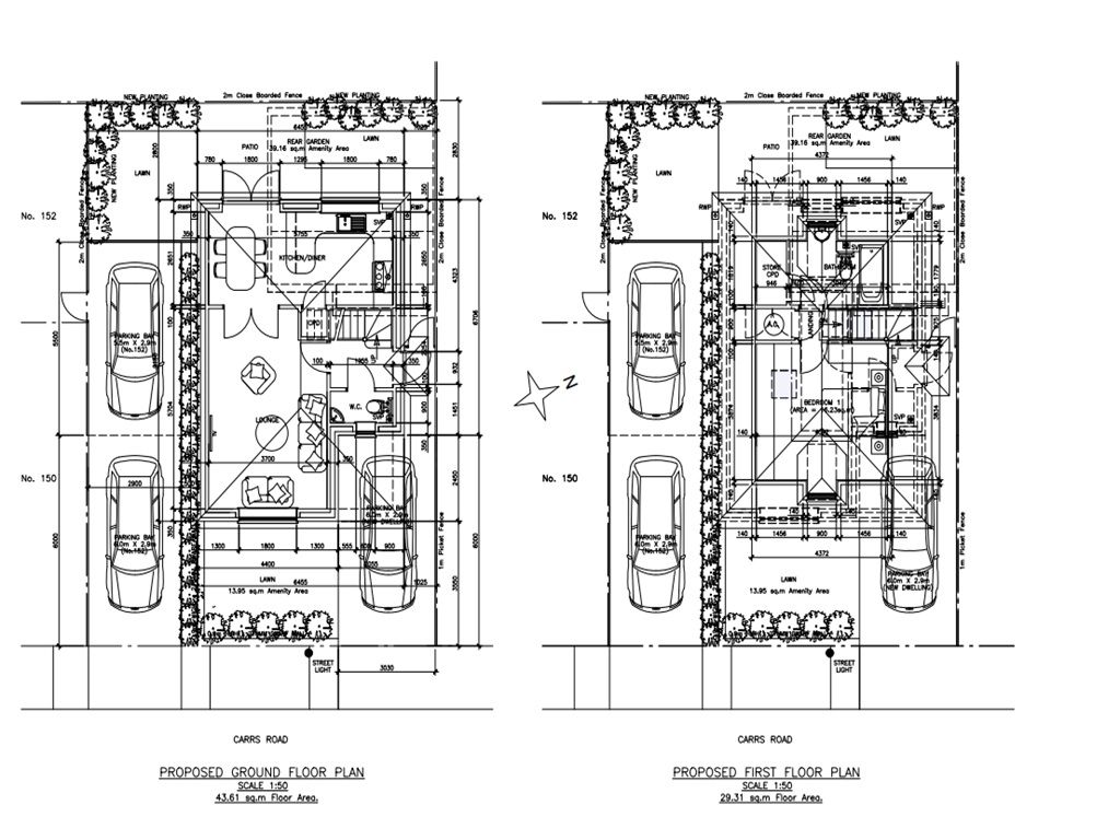
Planning permission for a one bedroom detached dwelling to the rear
No Onward Chain
Recently let for £1,850pcm- attractive investment opportunity
no onward chain. Early viewing his highly recommended to fully appreciate both the quality of the home and the future development potential on offer. Call for more information and to arrange your viewing today!
Description
An immaculately presented Three/Four bedroom semi-detached home offering spacious versatile accommodation throughout, together with the significant added benefit of approved planning permission for A one-bedroom detached dwelling at the rear of the plot.
This home has also recently been let for £1,850pcm, making it attractive opportunity for investors who are also seeking a future development.
Entrance Porch
Composite Entrance door, glass doors into
Entrance Hall
Storage cupboard, radiator, stairs to first floor
Living Room/Bedroom
Double glazed window at the front, two radiators, spotlights.
Living Room
Double glazed window at the side, spotlights, radiator, opens into
Kitchen/Diner
Matching wall and base units with marble workshops and marble splashback, integrated eye level oven, microwave, hob extractor and dishwasher, tiled floor throughout, kitchen island with a marble worktop and storage beneath, radiator, bi-fold doors at the rear leading to garden, sink with mixer taps and drainer double glazed window at the rear facing garden
Landing
Obscure double glazed window at the side, spotlights, loft hatch
Bedroom 1
Double glazed window at the front, spotlights, radiator
Bedroom 2
Double glazed window at the rear, radiator, spotlights
Bedroom 3
Double glazed window at the front, radiator, spotlights
Bathroom
Obscure double glazed window at the rear, partly tiled, P shape bath with mixer taps and shower over, vanity sink with mixer taps, low level WC, spotlights, heated towel rail, extractor fan
Outside
The 'L' shape land at the rear of the property includes planning permission for a one bedroom detached dwelling with a parking space and two off street parking spaces for the current house.
Agent Note
Planning permission under application 25/00320/ful
1. Money laundering regulations: Intending purchasers will be asked to produce identification documentation at a later stage and we would ask for your co-operation in order that there will be no delay in agreeing the sale.
2. General: While we endeavour to make our sales particulars fair, accurate and reliable, they are only a general guide to the property and, accordingly, if there is any point which is of particular importance to you, please contact the office and we will be pleased to check the position for you, especially if you are contemplating travelling some distance to view the property.
3. The measurements indicated are supplied for guidance only and as such must be considered incorrect.
4. Services: Please note we have not tested the services or any of the equipment or appliances in this property, accordingly we strongly advise prospective buyers to commission their own survey or service reports before finalising their offer to purchase.
5. These particulars are issued in good faith but do not constitute representations of fact or form part of any offer or contract. The matters referred to in these particulars should be independently verified by prospective buyers or tenants. Neither sequence (UK) limited nor any of its employees or agents has any authority to make or give any representation or warranty whatever in relation to this property.
Mortgage calculator
£1,625 per month
70+ lenders and 10,000+ products
The monthly repayments provided are estimates and should be used as a guide only. The actual amount you can borrow will depend on your personal financial situation and subject to a full application. For a more precise estimate, please use the Mojo mortgage calculator. Your home or property may be repossessed if you do not keep up repayments on your mortgage.



.png)