Guide price
£750,000
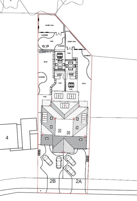
Land for saleThe Spinney, Beaconsfield, Buckinghamshire HP9
Freehold
About this property
An exceptional opportunity to acquire a plot with planning permission for a 6-bedroom family home in a prime location close to both Beaconsfield New Town and the Old Town.
The groundwork has already been laid for a seamless transition; the original dwelling has been demolished and foundations are complete for a substantial semi-detached residence spanning three floors.
Please note: The listed price of £750,000 is for the land and the benefit of the granted planning permission. A condition of sale is that the "shell" phase must be built out under contract with the seller at a fixed cost of £750,000. This includes the frame, masonry, render, roof, windows, external doors, and solar panels. Once the shell is complete, the purchaser has the flexibility to either finish the internals themselves or continue the contract with the developers to manage the final fit-out.
Once complete, this home will offer a sophisticated, interconnecting flow, resulting in a stunning contemporary residence tailored for a premium lifestyle.
Buckinghamshire Council Planning Ref: Pl/23/4169/fa
Location
The Spinney is a desirable residential location in Beaconsfield, combining a peaceful setting with excellent amenities nearby. Beaconsfield offers a charming Old Town with traditional pubs and a vibrant New Town with a wide range of shops, cafés and restaurants, along with leisure facilities and access to open countryside.
The area is well known for its excellent schooling, including Beaconsfield High School (grammar), highly regarded primary schools and a strong selection of independent schools nearby.
Transport links are superb, with Beaconsfield station providing fast services to London Marylebone, regular local bus routes, and easy access to the M40 (Junction 2). Heathrow Airport is readily accessible, with Gatwick and Luton also within convenient reach.
The groundwork has already been laid for a seamless transition; the original dwelling has been demolished and foundations are complete for a substantial semi-detached residence spanning three floors.
Please note: The listed price of £750,000 is for the land and the benefit of the granted planning permission. A condition of sale is that the "shell" phase must be built out under contract with the seller at a fixed cost of £750,000. This includes the frame, masonry, render, roof, windows, external doors, and solar panels. Once the shell is complete, the purchaser has the flexibility to either finish the internals themselves or continue the contract with the developers to manage the final fit-out.
Once complete, this home will offer a sophisticated, interconnecting flow, resulting in a stunning contemporary residence tailored for a premium lifestyle.
Buckinghamshire Council Planning Ref: Pl/23/4169/fa
Location
The Spinney is a desirable residential location in Beaconsfield, combining a peaceful setting with excellent amenities nearby. Beaconsfield offers a charming Old Town with traditional pubs and a vibrant New Town with a wide range of shops, cafés and restaurants, along with leisure facilities and access to open countryside.
The area is well known for its excellent schooling, including Beaconsfield High School (grammar), highly regarded primary schools and a strong selection of independent schools nearby.
Transport links are superb, with Beaconsfield station providing fast services to London Marylebone, regular local bus routes, and easy access to the M40 (Junction 2). Heathrow Airport is readily accessible, with Gatwick and Luton also within convenient reach.
Mortgage calculator
Monthly repayment
£3,751 per month
Whole of market comparison
70+ lenders and 10,000+ products
The monthly repayments provided are estimates and should be used as a guide only. The actual amount you can borrow will depend on your personal financial situation and subject to a full application. For a more precise estimate, please use the Mojo mortgage calculator. Your home or property may be repossessed if you do not keep up repayments on your mortgage.



.png)