£290,000
Land for saleHigh Street, Silverdale ST5
About this property
Purchase price is subject to 20% VAT
Newcastle Borough Council Planning Reference: 25/00387/ful
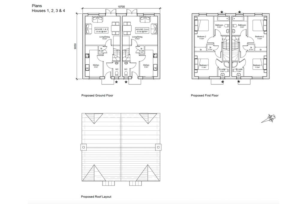
Planning approved for 8 residential dwellings (mix of 2- & 3-bed units)
Allocated parking for all homes
Sought-after location close to Newcastle-under-Lyme and Keele University
Established residential setting with strong local demand
Accessible site with good transport links and local amenities nearby
Ideal for developers, investors or joint-venture partners
Situated in a well-established residential area close to the amenities of Silverdale and Newcastle-under-Lyme town centre, the site offers excellent connectivity to Keele University, major road networks including the A34 and M6, and a range of local schools, shops and transport links.
The approved scheme has been thoughtfully designed to complement the surrounding area, offering a balanced mix of homes ideal for local buyers, first-time purchasers and downsizers alike. With strong demand for quality, energy-efficient housing across the region, this development represents a compelling opportunity for small to medium-sized builders or investors seeking a ready-to-go site with planning secured.
Don’t miss your chance to secure this sought-after opportunity.
House 1
2 Bedrooms gia - 80m2 Garden - 67m2
House 2
2 Bedrooms gia - 80m2 Garden 54m2
House 3
2 Bedrooms gia - 80m2 Garden - 47m2
House 4
2 Bedrooms gia - 80m2 Garden 57m2
House 5
3 Bedrooms gia - 87m2 Garden 67m2
House 6
3 Bedrooms gia - 87m2 Garden 78m2
House 7
3 Bedrooms gia - 87m2 Garden 74m2
House 8
3 Bedrooms gia - 87m2 Garden 76m2
Mortgage calculator
£1,450 per month
70+ lenders and 10,000+ products
The monthly repayments provided are estimates and should be used as a guide only. The actual amount you can borrow will depend on your personal financial situation and subject to a full application. For a more precise estimate, please use the Mojo mortgage calculator. Your home or property may be repossessed if you do not keep up repayments on your mortgage.
More information
Tenure
Freehold
Council tax band
Council tax band not yet known
Ground rent
£0



.png)