Guide price
£500,000
(£139/sq. ft)
Terraced house for saleHigh Street, Twyford RG10
3,595 sq. ft
Freehold
About this property
Approx. 334 Sq. M
Two Floors
Twyford High Street
Detailed Description
Positioned on Twyford High Street, a sought-after location in Berkshire combining period charm, retail amenities, and excellent transport links.
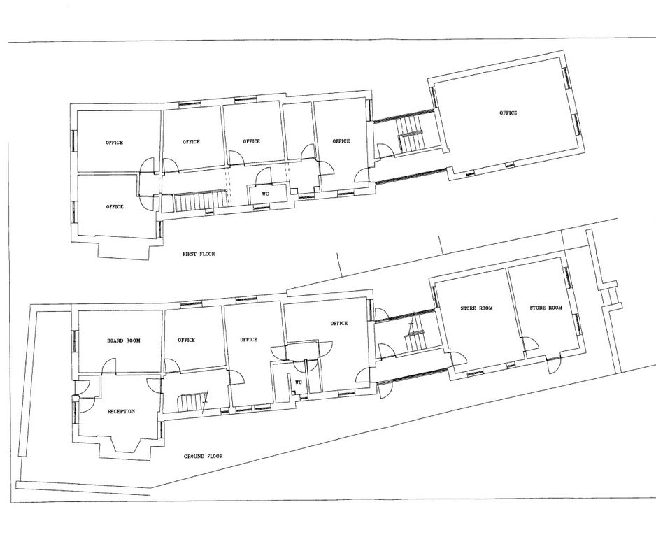
The existing building has a footprint of approx. 167 Sq.m and the total gross area, over two floors is 334 Sq. M.
Currently approx. 100sqm is laid out as Kitchen, toilets and storage areas. The remainder of the space is used for offices and meeting rooms.
With its vacant possession, the property is well-suited for conversion into residential flats, mixed-use (retail on ground / residential above), or high-quality office space. Ground floor commercial usage could be retained or re-imagined depending on planning and market demand. Value can be added via refurbishment, modernisation, improved layouts, or change of use (subject to necessary consents).
Positioned on Twyford High Street, a sought-after location in Berkshire combining period charm, retail amenities, cafés, and excellent transport links.
Twyford is part of the wider RG10 postcode district, known for its attractive homes and good family and business appeal.
Twyford Station is very close by, serving the Elizabeth Line and Great Western Railway. The station offers fast and frequent services to London Paddington and Reading, with journey times often in the range of 30-50 minutes depending on service.
Local connectivity is excellent: Buses, shops, schools and local civic amenities are all within walking distance, enhancing the day-to-day convenience of this location.
These details are prepared as a general guide only, and should not be relied upon as a basis to enter into a legal contract, or commit expenditure. An interested party should consult their own surveyor, solicitor or other professionals before committing themselves to any expenditure or other legal commitments.
All dimensions/measurements are approximate
Positioned on Twyford High Street, a sought-after location in Berkshire combining period charm, retail amenities, and excellent transport links.
The existing building has a footprint of approx. 167 Sq.m and the total gross area, over two floors is 334 Sq. M.
Currently approx. 100sqm is laid out as Kitchen, toilets and storage areas. The remainder of the space is used for offices and meeting rooms.
With its vacant possession, the property is well-suited for conversion into residential flats, mixed-use (retail on ground / residential above), or high-quality office space. Ground floor commercial usage could be retained or re-imagined depending on planning and market demand. Value can be added via refurbishment, modernisation, improved layouts, or change of use (subject to necessary consents).
Positioned on Twyford High Street, a sought-after location in Berkshire combining period charm, retail amenities, cafés, and excellent transport links.
Twyford is part of the wider RG10 postcode district, known for its attractive homes and good family and business appeal.
Twyford Station is very close by, serving the Elizabeth Line and Great Western Railway. The station offers fast and frequent services to London Paddington and Reading, with journey times often in the range of 30-50 minutes depending on service.
Local connectivity is excellent: Buses, shops, schools and local civic amenities are all within walking distance, enhancing the day-to-day convenience of this location.
These details are prepared as a general guide only, and should not be relied upon as a basis to enter into a legal contract, or commit expenditure. An interested party should consult their own surveyor, solicitor or other professionals before committing themselves to any expenditure or other legal commitments.
All dimensions/measurements are approximate
Mortgage calculator
Monthly repayment
£2,501 per month
Whole of market comparison
70+ lenders and 10,000+ products
The monthly repayments provided are estimates and should be used as a guide only. The actual amount you can borrow will depend on your personal financial situation and subject to a full application. For a more precise estimate, please use the Mojo mortgage calculator. Your home or property may be repossessed if you do not keep up repayments on your mortgage.



.png)