£160,000
Land for saleWimblington Road, Doddington, March PE15
Freehold
About this property
Ideal for self builders, developers, or families seeking a bespoke home
Outline Planning Permission
Attractive Village Setting
Summary
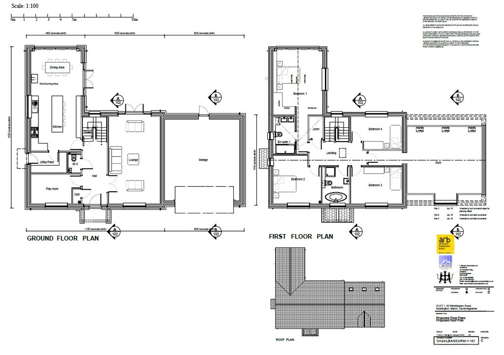
build your own ! Perfect self build opportunity located in the popular village of Doddington benefitting from Outline planning permission (1 x dwelling, 2-storey, 4-bed) Ref. F/YR23/0539/O
description
Located in the highly sought after village of Doddington, this superb building plot offers an excellent opportunity for those looking to construct their dream family home. Listed on the Fenland District Council planning portal under reference F/YR23/0539/O, the plot benefits from outline planning permission for a generously sized four bedroom detached dwelling with double garage.
1. Money laundering regulations: Intending purchasers will be asked to produce identification documentation at a later stage and we would ask for your co-operation in order that there will be no delay in agreeing the sale.
2. General: While we endeavour to make our sales particulars fair, accurate and reliable, they are only a general guide to the property and, accordingly, if there is any point which is of particular importance to you, please contact the office and we will be pleased to check the position for you, especially if you are contemplating travelling some distance to view the property.
3. The measurements indicated are supplied for guidance only and as such must be considered incorrect.
4. Services: Please note we have not tested the services or any of the equipment or appliances in this property, accordingly we strongly advise prospective buyers to commission their own survey or service reports before finalising their offer to purchase.
5. These particulars are issued in good faith but do not constitute representations of fact or form part of any offer or contract. The matters referred to in these particulars should be independently verified by prospective buyers or tenants. Neither sequence (UK) limited nor any of its employees or agents has any authority to make or give any representation or warranty whatever in relation to this property.
build your own ! Perfect self build opportunity located in the popular village of Doddington benefitting from Outline planning permission (1 x dwelling, 2-storey, 4-bed) Ref. F/YR23/0539/O
description
Located in the highly sought after village of Doddington, this superb building plot offers an excellent opportunity for those looking to construct their dream family home. Listed on the Fenland District Council planning portal under reference F/YR23/0539/O, the plot benefits from outline planning permission for a generously sized four bedroom detached dwelling with double garage.
1. Money laundering regulations: Intending purchasers will be asked to produce identification documentation at a later stage and we would ask for your co-operation in order that there will be no delay in agreeing the sale.
2. General: While we endeavour to make our sales particulars fair, accurate and reliable, they are only a general guide to the property and, accordingly, if there is any point which is of particular importance to you, please contact the office and we will be pleased to check the position for you, especially if you are contemplating travelling some distance to view the property.
3. The measurements indicated are supplied for guidance only and as such must be considered incorrect.
4. Services: Please note we have not tested the services or any of the equipment or appliances in this property, accordingly we strongly advise prospective buyers to commission their own survey or service reports before finalising their offer to purchase.
5. These particulars are issued in good faith but do not constitute representations of fact or form part of any offer or contract. The matters referred to in these particulars should be independently verified by prospective buyers or tenants. Neither sequence (UK) limited nor any of its employees or agents has any authority to make or give any representation or warranty whatever in relation to this property.
Mortgage calculator
Monthly repayment
£800 per month
Whole of market comparison
70+ lenders and 10,000+ products
The monthly repayments provided are estimates and should be used as a guide only. The actual amount you can borrow will depend on your personal financial situation and subject to a full application. For a more precise estimate, please use the Mojo mortgage calculator. Your home or property may be repossessed if you do not keep up repayments on your mortgage.



.png)