£2,950,000
Land for saleRook Hill Road, Friars Cliff, Christchurch BH23
5 beds
2 baths
3 receptions
Freehold
About this property
Option of a Bespoke Build Contract
Planning Permission Granted
Prime Friars Cliff Plot
Highly Sought After Location
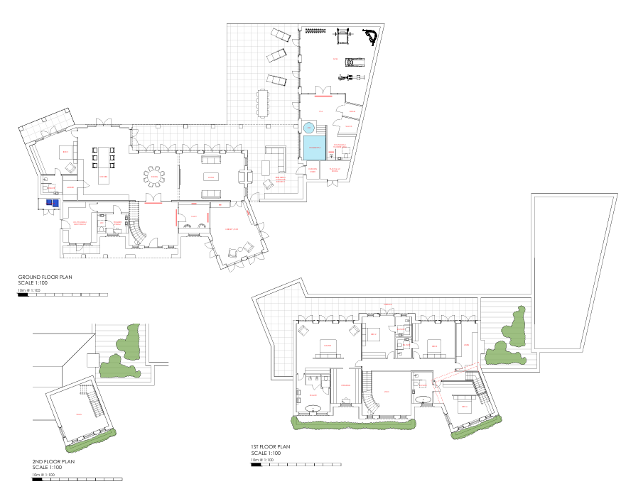
Approved Plans for Dwelling Extending to Approximately 5,180 sqft + 1,257 sq ft leisure wing
Planning Permission Granted – Prime Friars Cliff Plot. An opportunity to acquire a substantial plot with planning permission in place, together with the option of a bespoke build contract, set on one of Friars Cliff’s most well-regarded private roads. The approved plans provide for a new dwelling extending to approximately 5,180 sq ft of accommodation, alongside a separate 1,257 sq ft leisure wing designed to incorporate a swimming pool and gym.
Opportunities to secure a plot of this scale with consent already granted are increasingly rare within the local area. The site is positioned on Rook Hill Road, a highly sought-after address known for its impressive homes and generous plots. The location also places the coastline at Friars Cliff and Christchurch Bay within easy reach, offering access to sandy beaches and coastal walks.
Points Of Interest
Avon Beach - 0.3 Miles
The Beach Hut Cafe - 0.3 Miles
Noisy Lobster Restaurant - 0.4 Miles
Steamer Point Nature Reserve - 0.8 Miles
Highcliffe Town Centre - 1.7 Miles
Christchurch Harbour Hotel & The Jetty Restaurant - 1.0 Miles
Highcliffe Castle & Access to Highcliffe Beach - 1.1 Miles
Christchurch Town Centre - 2.7 Miles
Chewton Glen Hotel & Spa - 3.3 Miles
Christchurch Priory & Quay - 3.6 Miles
Mudeford Quay - 0.8 Miles
Highcliffe School - 1.6 Miles
Christchurch Railway Station - 3.4 Miles
Bournemouth Airport - 8.2 Miles
Bournemouth Centre - 6.8 Miles
London - 104 Miles
Opportunities to secure a plot of this scale with consent already granted are increasingly rare within the local area. The site is positioned on Rook Hill Road, a highly sought-after address known for its impressive homes and generous plots. The location also places the coastline at Friars Cliff and Christchurch Bay within easy reach, offering access to sandy beaches and coastal walks.
Points Of Interest
Avon Beach - 0.3 Miles
The Beach Hut Cafe - 0.3 Miles
Noisy Lobster Restaurant - 0.4 Miles
Steamer Point Nature Reserve - 0.8 Miles
Highcliffe Town Centre - 1.7 Miles
Christchurch Harbour Hotel & The Jetty Restaurant - 1.0 Miles
Highcliffe Castle & Access to Highcliffe Beach - 1.1 Miles
Christchurch Town Centre - 2.7 Miles
Chewton Glen Hotel & Spa - 3.3 Miles
Christchurch Priory & Quay - 3.6 Miles
Mudeford Quay - 0.8 Miles
Highcliffe School - 1.6 Miles
Christchurch Railway Station - 3.4 Miles
Bournemouth Airport - 8.2 Miles
Bournemouth Centre - 6.8 Miles
London - 104 Miles
Mortgage calculator
Monthly repayment
£14,757 per month
Whole of market comparison
70+ lenders and 10,000+ products
The monthly repayments provided are estimates and should be used as a guide only. The actual amount you can borrow will depend on your personal financial situation and subject to a full application. For a more precise estimate, please use the Mojo mortgage calculator. Your home or property may be repossessed if you do not keep up repayments on your mortgage.



.png)