Guide price
£150,000
Property for saleLanchard Rise, Liskeard PL14
Freehold
About this property
Full planning permission for three homes
Each home designed with three bedrooms and ensuite to master bedroom
Private parking and turning space included
Generous garden plots
Attractive setting close to town
Freehold with vacant possession
A superb opportunity to acquire a tucked‐away parcel of land with full planning permission for three three‐bedroom homes, each designed with private parking, generous gardens, and with ensuites to the master bedroom.
Set behind an established residential street, the site enjoys a peaceful backdrop of trees while remaining within easy reach of Liskeard town centre, schools, and transport links.
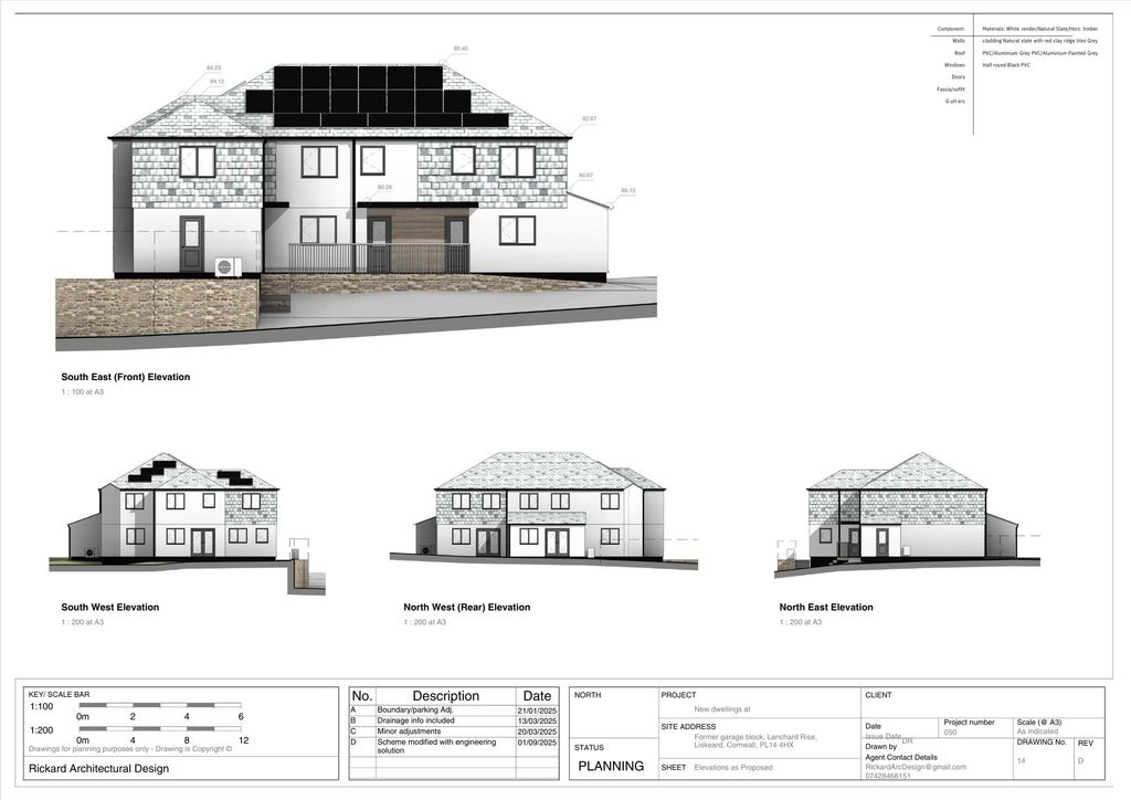
The approved scheme (Application No. PA25/03636) offers well‐proportioned, modern homes with practical layouts ideal for developers or small builders.
The site is currently a mix of open ground and former garage bases, the land sits behind Lanchard Rise with a natural tree line to the rear. The approved plans include a considered drainage design, well‐spaced plots, and a layout that makes the most of the site’s privacy and greenery.
FAQs
Planning - Full details, drawings, and supporting documents can be viewed online via PA25/03636.
Services - Prospective purchasers should verify the availability and connection costs of any mains services required.
Tenure - Freehold with vacant possession
Local Authority - Cornwall Council
Easements & Rights - Sold subject to all existing rights of way, easements, and matters within the registered title
Boundaries - Buyers are deemed to have full knowledge of boundaries; neither the vendor nor agents will define ownership
Plans - For identification purposes only
Under Anti-Money Laundering Regulations, Parkes and Pearn is legally required to carry out checks on all sellers and buyers. This means we must confirm your identity and, where necessary, verify the source of the funds you are using to purchase the property. We use an approved third-party company to complete these checks on our behalf. A non-refundable fee of £80 (including VAT) is charged to cover the cost.
Directions
SatNav – PL14 4HX
what3words: ///schematic.graduated.unfair
Disclaimer
Important Notice
Please be advised that we have not tested any equipment, fixtures, fittings, or services. Prospective purchasers or interested parties are encouraged to carry out their own checks to verify the functionality of these items. All measurements are approximate, and the photographs are for illustrative purposes only.
Set behind an established residential street, the site enjoys a peaceful backdrop of trees while remaining within easy reach of Liskeard town centre, schools, and transport links.
The approved scheme (Application No. PA25/03636) offers well‐proportioned, modern homes with practical layouts ideal for developers or small builders.
The site is currently a mix of open ground and former garage bases, the land sits behind Lanchard Rise with a natural tree line to the rear. The approved plans include a considered drainage design, well‐spaced plots, and a layout that makes the most of the site’s privacy and greenery.
FAQs
Planning - Full details, drawings, and supporting documents can be viewed online via PA25/03636.
Services - Prospective purchasers should verify the availability and connection costs of any mains services required.
Tenure - Freehold with vacant possession
Local Authority - Cornwall Council
Easements & Rights - Sold subject to all existing rights of way, easements, and matters within the registered title
Boundaries - Buyers are deemed to have full knowledge of boundaries; neither the vendor nor agents will define ownership
Plans - For identification purposes only
Under Anti-Money Laundering Regulations, Parkes and Pearn is legally required to carry out checks on all sellers and buyers. This means we must confirm your identity and, where necessary, verify the source of the funds you are using to purchase the property. We use an approved third-party company to complete these checks on our behalf. A non-refundable fee of £80 (including VAT) is charged to cover the cost.
Directions
SatNav – PL14 4HX
what3words: ///schematic.graduated.unfair
Disclaimer
Important Notice
Please be advised that we have not tested any equipment, fixtures, fittings, or services. Prospective purchasers or interested parties are encouraged to carry out their own checks to verify the functionality of these items. All measurements are approximate, and the photographs are for illustrative purposes only.
Mortgage calculator
Monthly repayment
£750 per month
Whole of market comparison
70+ lenders and 10,000+ products
The monthly repayments provided are estimates and should be used as a guide only. The actual amount you can borrow will depend on your personal financial situation and subject to a full application. For a more precise estimate, please use the Mojo mortgage calculator. Your home or property may be repossessed if you do not keep up repayments on your mortgage.
More information
Tenure
Freehold
Council tax band
Council tax band not yet known
Ground rent
£0



.png)