Guide price
£850,000
Land for saleMoor Place Park, Much Hadham, Hertfordshire SG10
About this property
Exceptional plot with planning permission for a bespoke detached home (Ref: 3/25/1150/ful)
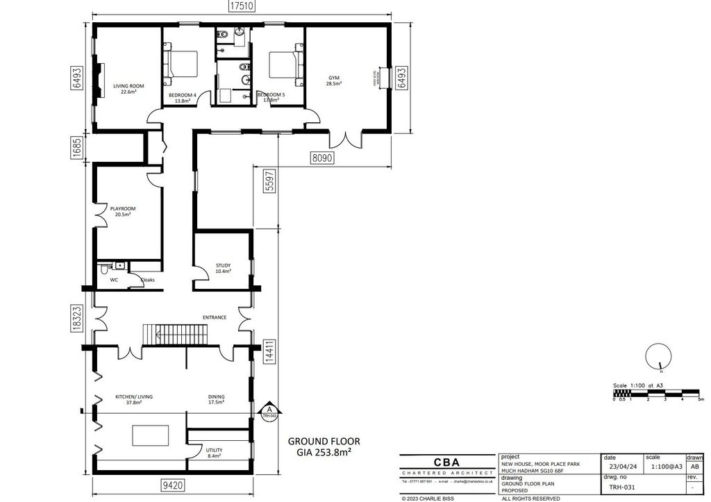
Proposed five bedroom layout, with flexibility for the buyer to reconfigure the internal design to suit personal requirements
Attractive barn style architecture designed to blend seamlessly with the established Moor Place development
Stunning open field views, offering a beautiful rural outlook toward Much Hadham village
Prime private setting within a highly regarded and discreet residential enclave.
Perfect village position - around half a mile from the shop, primary school and excellent local pub.
Description
Set within the prestigious and beautifully established Moor Place estate in the heart of Much Hadham, this rare plot presents a unique and highly exclusive opportunity to build a bespoke five bedroom home in one of the area’s most desirable village locations.
With planning permission granted (Ref: 3/25/1150/ful), the proposed barn style residence has been thoughtfully designed to sit harmoniously within its surroundings, offering contemporary family living behind an architecturally refined rural façade.
Occupying a prime position with far reaching views across open fields towards the village, the plot combines privacy, tranquillity and convenience - situated within just half a mile of the village shop, school and acclaimed local pub.
This is a chance to create a home entirely tailored to your own taste, within an exclusive development where opportunities of this nature are increasingly scarce.
Location
Nestled in the picturesque Hertfordshire countryside, Much Hadham is a charming historic village that offers a delightful blend of community spirit and modern conveniences.
The village boasts a quaint village shop that includes a Post Office, a highly regarded public house, a beautiful church, and the well-regarded St Andrew's Primary School.
Families will appreciate the children's playground located on the Recreation Ground, which also features tennis courts and a Bowls Club, perfect for outdoor activities and socializing.
The 35 bus service conveniently runs through the village, connecting residents to Stanstead Abbots and Bishop’s Stortford.
For those commuting to London, mainline railway stations are available at Bishop’s Stortford, offering services to London Liverpool Street, and Harlow Town station, with travel times to Liverpool Street from just 32 minutes.
The village is well-connected by road, with the A10 and M11 accessible via the A414 and A120, providing easy vehicular access to London and the M25 to the south, or Cambridge to the north.
Much Hadham is also home to a pre-school, ensuring excellent educational opportunities for young children.
Nearby, you will find outstanding state schools and prestigious private schools such as Heathmount, Bishop’s Stortford College, Haileybury, and St Edmund's.
This vibrant village offers a perfect blend of historical charm and modern amenities, making it an ideal place to call home.
Acreage:
0.46 Acres
Additional Info
Moor Place Park has gas, drainage and mains electricity, whicg this site would need to connect to. Water is supplied via a shared bore hole.
“Prospective purchasers are advised to make their own independent enquiries regarding any restrictions, covenants, or other matters that may affect the plot.”
Mortgage calculator
£4,252 per month
70+ lenders and 10,000+ products
The monthly repayments provided are estimates and should be used as a guide only. The actual amount you can borrow will depend on your personal financial situation and subject to a full application. For a more precise estimate, please use the Mojo mortgage calculator. Your home or property may be repossessed if you do not keep up repayments on your mortgage.



.png)