Guide price
£37,000
Land for saleLand At The Rear Of, 174 High Street, Gilfach Goch, Porth, Mid Glamorgan CF39
Auction
Freehold
About this property
Advised Freehold - to be verified by solicitor
To be sold with vacant possession
For sale by online auction - Lot 65 - Building Plot With Approved Planning Permission
Bidding opens: 14/04/2026 12:00
Auction scheduled to end: 16/04/2026 16:08
online auction from 14th April - 16th April 2026
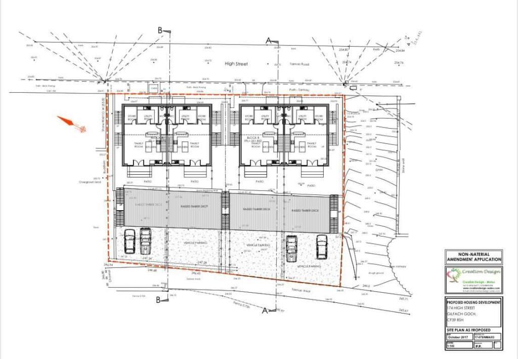
A plot of land with road frontage located in an established residential area. Detailed planning permission was approved for the development of two pairs of semi detached houses (four in total).
(The land also had previous planning (now lapsed) for a detached house with annexe and garage).
Gilfach Goch benefits from local amenities, facilities and offers convenient access to Porth, Tonyrefail, Talbot Green and the M4 motorway.
Planning Permission Detailed planning permission has been approved for the development of four semi detached town houses.
Planning reference 23/0738/Ful
(The land also had planning (now lapsed) for a detached house with annexe and garage - Planning ref: 16/1071/10).
Local Authority Rhondda Cynon Taff. Any enquiries regarding planning should be directed to the local authority.
Any enquiries regarding planning should be directed to the local authority.
Tenure:
Advised Freehold - to be verified by solicitor
Tenancies:
To be sold with vacant possession
Bidding opens: 14/04/2026 12:00
Auction scheduled to end: 16/04/2026 16:08
online auction from 14th April - 16th April 2026
A plot of land with road frontage located in an established residential area. Detailed planning permission was approved for the development of two pairs of semi detached houses (four in total).
(The land also had previous planning (now lapsed) for a detached house with annexe and garage).
Gilfach Goch benefits from local amenities, facilities and offers convenient access to Porth, Tonyrefail, Talbot Green and the M4 motorway.
Planning Permission Detailed planning permission has been approved for the development of four semi detached town houses.
Planning reference 23/0738/Ful
(The land also had planning (now lapsed) for a detached house with annexe and garage - Planning ref: 16/1071/10).
Local Authority Rhondda Cynon Taff. Any enquiries regarding planning should be directed to the local authority.
Any enquiries regarding planning should be directed to the local authority.
Tenure:
Advised Freehold - to be verified by solicitor
Tenancies:
To be sold with vacant possession
Mortgage calculator
Monthly repayment
£185 per month
Whole of market comparison
70+ lenders and 10,000+ products
The monthly repayments provided are estimates and should be used as a guide only. The actual amount you can borrow will depend on your personal financial situation and subject to a full application. For a more precise estimate, please use the Mojo mortgage calculator. Your home or property may be repossessed if you do not keep up repayments on your mortgage.



.png)