£225,000
Land for saleLand At Rear Of The Droveway, St Margarets Bay, Dover CT15
Freehold
About this property
Residential new build development opportunity
Full planning in place
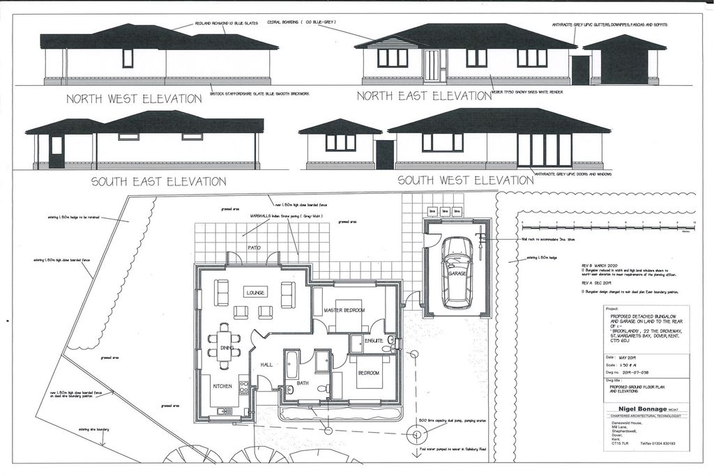
Granted A two bedroom detached bungalow & garage
Popular st margarets bay location
A rare opportunity to purchase this residential development plot. With full planning permission in place for A two double bedroom detached bungalow with garage.
This new build plot is set in the well regarded and picturesque village of St Margarets Bay.
Nestled in an idyllic coastal setting, the surrounding countryside is designated as an Area of Outstanding Natural Beauty, offering an extensive network of scenic footpaths along the cliff tops. A sheltered beach lies close by, perfect for leisurely days by the sea.
The nearby village centre provides a range of convenient amenities, including a primary school, welcoming pubs and restaurants, as well as a village shop and post office. A bus service operates locally.
To the north is the historic Cinque Port town of Deal, while to the south lies the Port of Dover. Both locations offer mainline rail services, including the High Speed link to London St Pancras, making this an ideal location for commuters and those seeking a balance of coastal living and connectivity.
This new build plot is set in the well regarded and picturesque village of St Margarets Bay.
Nestled in an idyllic coastal setting, the surrounding countryside is designated as an Area of Outstanding Natural Beauty, offering an extensive network of scenic footpaths along the cliff tops. A sheltered beach lies close by, perfect for leisurely days by the sea.
The nearby village centre provides a range of convenient amenities, including a primary school, welcoming pubs and restaurants, as well as a village shop and post office. A bus service operates locally.
To the north is the historic Cinque Port town of Deal, while to the south lies the Port of Dover. Both locations offer mainline rail services, including the High Speed link to London St Pancras, making this an ideal location for commuters and those seeking a balance of coastal living and connectivity.
Mortgage calculator
Monthly repayment
£1,125 per month
Whole of market comparison
70+ lenders and 10,000+ products
The monthly repayments provided are estimates and should be used as a guide only. The actual amount you can borrow will depend on your personal financial situation and subject to a full application. For a more precise estimate, please use the Mojo mortgage calculator. Your home or property may be repossessed if you do not keep up repayments on your mortgage.



.png)