Offers over
£84,995
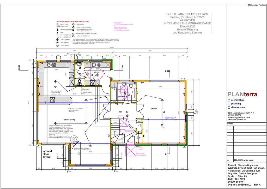
Land for saleWest High Cross, Yieldshields, Carluke ML8
Freehold
About this property
An excellent opportunity to acquire a prime residential building plot located within the peaceful village of Yieldshields, offering a fantastic semi-rural setting while remaining accessible to nearby amenities.
Extending to around 908 square meters, the plot benefits from full planning permission for the construction of a substantial four-bedroom detached dwelling with garage, making it ideal for self-builders or developers alike.
A building warrant application has been submitted (Ref: 2138980 / B/23/2443), further enhancing the appeal of this ready-to-develop site. Planning permission South Lanarkshire Council Planning reference: B/21/2873.
Services are understood to be available nearby, and drainage is proposed via a septic tank system.
Set within a quiet village location, this plot offers an excellent opportunity to create a bespoke family home in a desirable rural setting.
Early enquiry is highly recommended.
Extending to around 908 square meters, the plot benefits from full planning permission for the construction of a substantial four-bedroom detached dwelling with garage, making it ideal for self-builders or developers alike.
A building warrant application has been submitted (Ref: 2138980 / B/23/2443), further enhancing the appeal of this ready-to-develop site. Planning permission South Lanarkshire Council Planning reference: B/21/2873.
Services are understood to be available nearby, and drainage is proposed via a septic tank system.
Set within a quiet village location, this plot offers an excellent opportunity to create a bespoke family home in a desirable rural setting.
Early enquiry is highly recommended.
Mortgage calculator
Monthly repayment
£425 per month
Whole of market comparison
70+ lenders and 10,000+ products
The monthly repayments provided are estimates and should be used as a guide only. The actual amount you can borrow will depend on your personal financial situation and subject to a full application. For a more precise estimate, please use the Mojo mortgage calculator. Your home or property may be repossessed if you do not keep up repayments on your mortgage.



.png)