Guide price
£995,000
2 bed detached house for saleOak Lane, Shillinglee, Chiddingfold, Godalming GU8
2 beds
2 baths
1 reception
EPC Rating: E
Freehold
About this property
Detached Farm building Conversion.
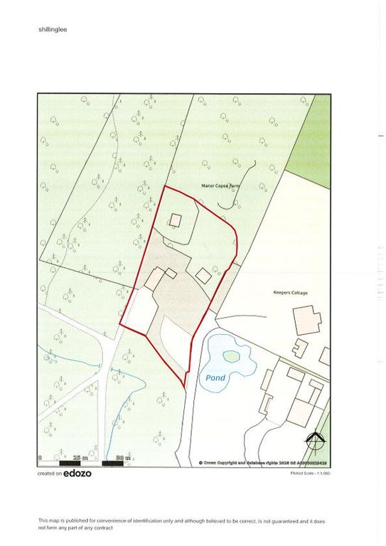
Plot 1.05 Acres.
Secluded and private.
Pp granted for a 2 storey extension - 22/01930/ful.
Semi-rural location.
Located between Haslemere and Plaistow.
2 Bedrooms.
Development opportunity.
Integral Garage with ample parking.
Outbuilding for multi use.
A super opportunity to acquire a truly unique property set in a generous plot of just over 1 acre.
This detached farm building conversion sits on a secluded plot of 1.05 acres and is located in a semi rural location, off a private lane and surrounded by woodland and open countryside. Being sold with vacant possession and no onwards chain, The Coach House was originally built in 2008 but was converted into habitable accommodation in 2013 and offers a potential Buyer many options, be it to retain it as it stands as a possible 'lock and leave' or to extend and a possible re-build, subject of course, to the necessary planning consents. Pp was granted in 2022 for a 2 storey extension. Set on 2 levels, it has a large open Living Room/Kitchen with an adjoining Utility Room and ground floor Shower Room with 2 first floor Bedrooms and a Bathroom. An integral Garage serves as a useful workshop/store but could be incorporated as habitable use, STPP.
The secluded grounds stretch around the property which are made up of a sweeping driveway with ample parking, a detached Garage, some lawned areas and light woodland with a further detached outbuilding with power and offering a variety of use options. The plot in its entirely, is 1.05 acres.
This detached farm building conversion sits on a secluded plot of 1.05 acres and is located in a semi rural location, off a private lane and surrounded by woodland and open countryside. Being sold with vacant possession and no onwards chain, The Coach House was originally built in 2008 but was converted into habitable accommodation in 2013 and offers a potential Buyer many options, be it to retain it as it stands as a possible 'lock and leave' or to extend and a possible re-build, subject of course, to the necessary planning consents. Pp was granted in 2022 for a 2 storey extension. Set on 2 levels, it has a large open Living Room/Kitchen with an adjoining Utility Room and ground floor Shower Room with 2 first floor Bedrooms and a Bathroom. An integral Garage serves as a useful workshop/store but could be incorporated as habitable use, STPP.
The secluded grounds stretch around the property which are made up of a sweeping driveway with ample parking, a detached Garage, some lawned areas and light woodland with a further detached outbuilding with power and offering a variety of use options. The plot in its entirely, is 1.05 acres.
Mortgage calculator
Monthly repayment
£4,977 per month
Whole of market comparison
70+ lenders and 10,000+ products
The monthly repayments provided are estimates and should be used as a guide only. The actual amount you can borrow will depend on your personal financial situation and subject to a full application. For a more precise estimate, please use the Mojo mortgage calculator. Your home or property may be repossessed if you do not keep up repayments on your mortgage.



.png)