£150,000
4 bed barn conversion for saleWesthall Farm, Lynn Road, Middleton, King's Lynn, Norfolk PE32
4 beds
1 bath
1 reception
Freehold
About this property
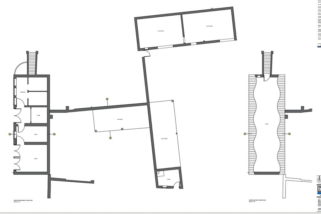
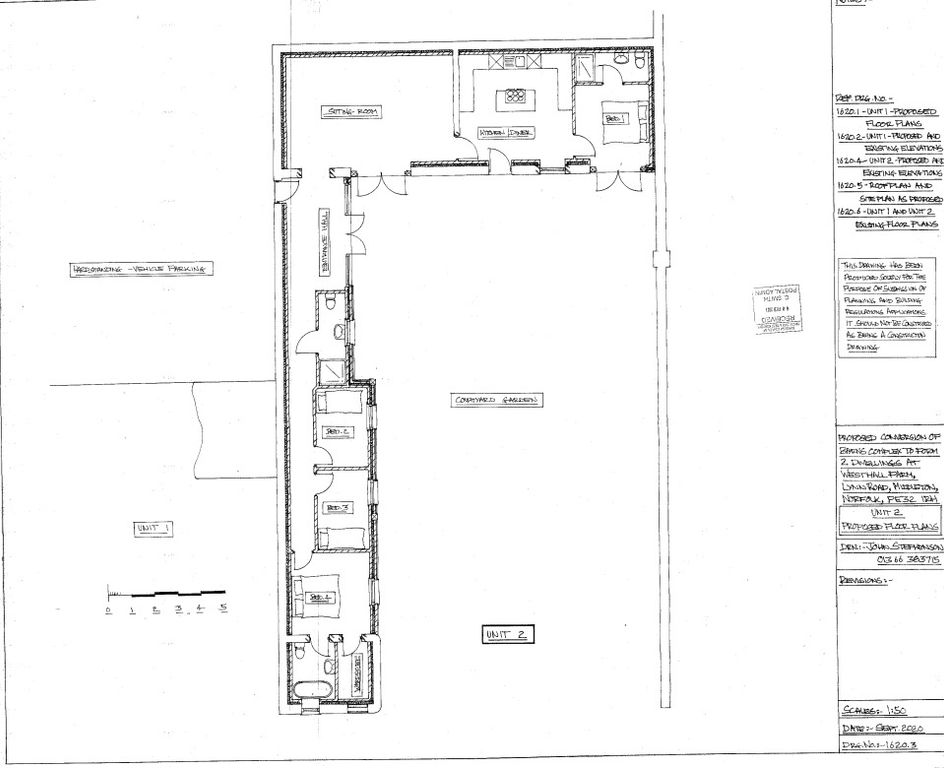
Barn with full planning permission
Quiet and rural village location
Planning permission granted: Planning ref:21/00336/F
Ideal for A self build or developer
Barn With Full Planning Permission
The Norfolk Agents are pleased to offer this barn with planning permission for a spacious four bedroom home. The home will feature four well proportioned bedrooms open plan kitchen diner and spacious sitting room. Ideal for a local developer or a self build as a long term family home. Full details are available under Planning Reference: 21/00336/F - and further information is available on the Kings Lynn and West Norfolk planning portal or from the agent via request
Viewing is available by appointment only. Please ask the agent for further information on the planning.
Tenure: Freehold
1. To comply with the Money Laundering Regulations, we must verify your identification documents and source of funds. These checks are carried out by Coadjute, a regulated third-party provider. A £45 fee (+ VAT) per client applies to cover administration and verification, payable at the outset.
2. While we endeavour to make our sales details fair, accurate and reliable, they are only a general guide to the property. If there is any point which is of particular importance to you, please contact the office and we will be pleased to make further investigations.
3. The measurements indicated are supplied for guidance only.
4. Please note we have not tested the services or any of the equipment or appliances in this property. We strongly advise prospective buyers to commission their own survey or service reports before finalising their offer to purchase.
5. These particulars are issued in good faith but do not form part of any offer or contract. The matters referred to in these particulars should be independently verified by prospective buyers or tenants. The Norfolk Agents limited nor any of its employees has any authority to make or give any representation or warranty whatsoever in relation to this property.
The Norfolk Agents are pleased to offer this barn with planning permission for a spacious four bedroom home. The home will feature four well proportioned bedrooms open plan kitchen diner and spacious sitting room. Ideal for a local developer or a self build as a long term family home. Full details are available under Planning Reference: 21/00336/F - and further information is available on the Kings Lynn and West Norfolk planning portal or from the agent via request
Viewing is available by appointment only. Please ask the agent for further information on the planning.
Tenure: Freehold
1. To comply with the Money Laundering Regulations, we must verify your identification documents and source of funds. These checks are carried out by Coadjute, a regulated third-party provider. A £45 fee (+ VAT) per client applies to cover administration and verification, payable at the outset.
2. While we endeavour to make our sales details fair, accurate and reliable, they are only a general guide to the property. If there is any point which is of particular importance to you, please contact the office and we will be pleased to make further investigations.
3. The measurements indicated are supplied for guidance only.
4. Please note we have not tested the services or any of the equipment or appliances in this property. We strongly advise prospective buyers to commission their own survey or service reports before finalising their offer to purchase.
5. These particulars are issued in good faith but do not form part of any offer or contract. The matters referred to in these particulars should be independently verified by prospective buyers or tenants. The Norfolk Agents limited nor any of its employees has any authority to make or give any representation or warranty whatsoever in relation to this property.
Mortgage calculator
Monthly repayment
£750 per month
Whole of market comparison
70+ lenders and 10,000+ products
The monthly repayments provided are estimates and should be used as a guide only. The actual amount you can borrow will depend on your personal financial situation and subject to a full application. For a more precise estimate, please use the Mojo mortgage calculator. Your home or property may be repossessed if you do not keep up repayments on your mortgage.



.png)