£3,945,000
(£754/sq. ft)
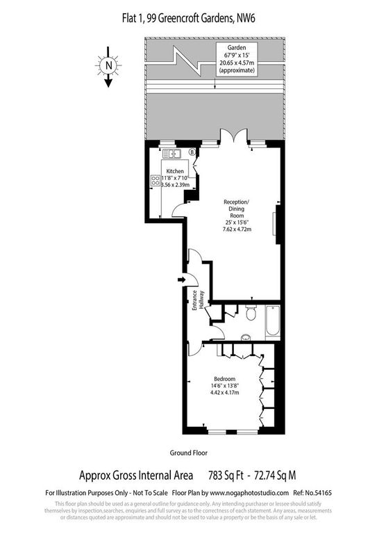
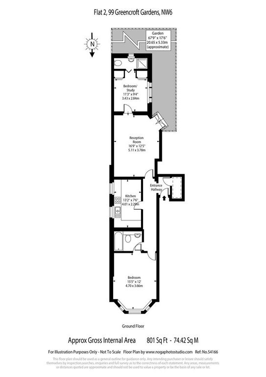
8 bed detached house for saleGreencroft Gardens, South Hampstead NW6
8 beds
8 baths
8 receptions
5,229 sq. ft
Freehold
About this property
Victorian Detached House
Freehold
Consists of 8 Flats - 5229sq ft
Arranged over 3 floors
High Ceiling & Large Windows
Large Private Garden
10 min to West Hampstead & Finchley Road Tube
10 min to South Hampstead Overground Station
Close to restaurants, shops & amenities
A fantastic opportunity to acquire this highly sought after attractive Victorian detached house situated on a quiet tree-lined road in the heart of South Hampstead, consists of 8 flats (5229sq ft - not including communal areas, restricted heights or garden) arranged over three floors with rear garden.
A short walk from Finchley Road, South Hampstead and West Hampstead stations. In addition, it further benefits from its close proximity to shops and amenities on Finchley Road and West Hampstead's West End Lane, make this an ideally located property.
A short walk from Finchley Road, South Hampstead and West Hampstead stations. In addition, it further benefits from its close proximity to shops and amenities on Finchley Road and West Hampstead's West End Lane, make this an ideally located property.



.png)