Offers in region of
£85,000
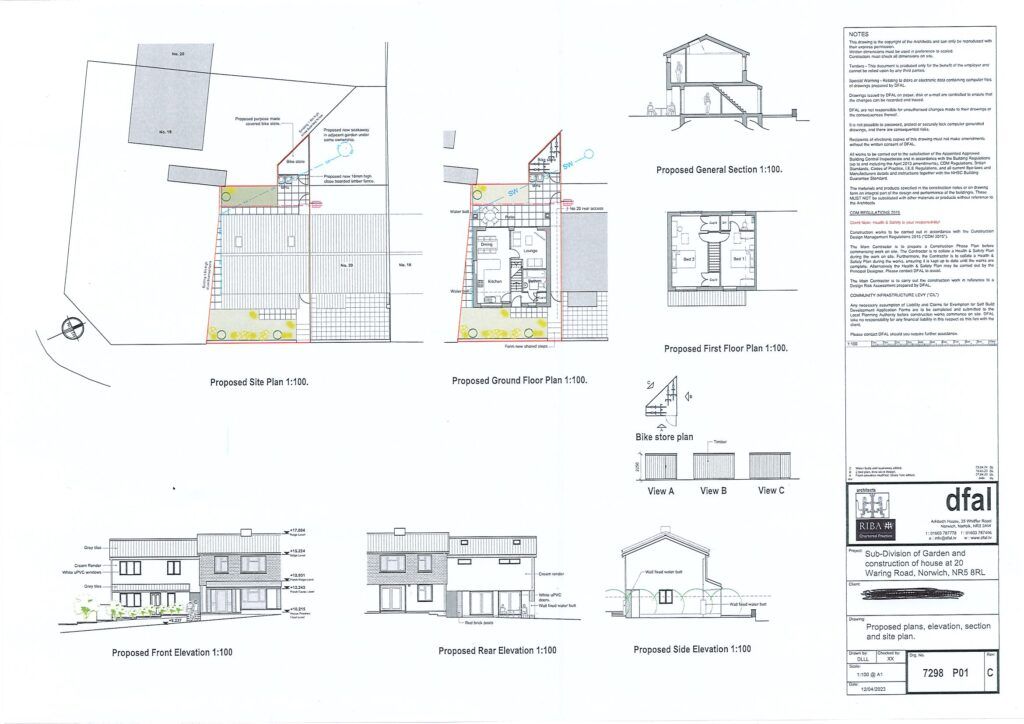
Land for saleWaring Road, Close To The Uea NR5
2 beds
2 baths
1 reception
EPC Rating: D
Just added
Freehold
About this property
Single Building Plot
Planning Ref: 22/00764/F ( Norwich City Council )
End Terrace House
Open Plan Kitchen/Dining Room
Lounge
Two Bedrooms
Bathroom & En-Suite
Great Investment Purchase Ideal Once Built For Individual Room Lets
Agents Note
Any buyer should look into the conditions of the planning which has been granted before making any offers, all this info can be found on the Norwich City councils planning website using the planning number 22/00764/F
Any buyer should look into the conditions of the planning which has been granted before making any offers, all this info can be found on the Norwich City councils planning website using the planning number 22/00764/F
Mortgage calculator
Monthly repayment
£425 per month
Whole of market comparison
70+ lenders and 10,000+ products
The monthly repayments provided are estimates and should be used as a guide only. The actual amount you can borrow will depend on your personal financial situation and subject to a full application. For a more precise estimate, please use the Mojo mortgage calculator. Your home or property may be repossessed if you do not keep up repayments on your mortgage.



.png)