From
£160,000
Land for saleArbour Road, Ponders End, Enfield EN3
Just added
Auction
About this property
A site of approximately 2,722.19 sq ft
Planning permission granted for a three bedroom detached house
Planning conditions discharged (please refer to the legal pack for further information)
Vacant
Conveniently located for the amenities of Enfield
Strapline
Auction Sale - 21/04/2026 - To book viewings, view the legal pack and register to bid please refer to the full sales particulars on the Savills Auctions website. -
Of interest to builders and developers
A site of approximately 2,722.19 sq ft with planning permission granted for a three bedroom detached house, well located for the Shopping and Recreational amenities of Enfield- Vacant
Description
A site of approximately 2,722 sq ft
Location
Located near to the junction of Arbour Road and The Ride
An extensive range of Shopping facilities can be found nearby in the centre of Enfield
Recreational amenities of Durants Park and Ponders End Park
Transport
Overound- Soutbury
National Rail- Ponders End
Planning
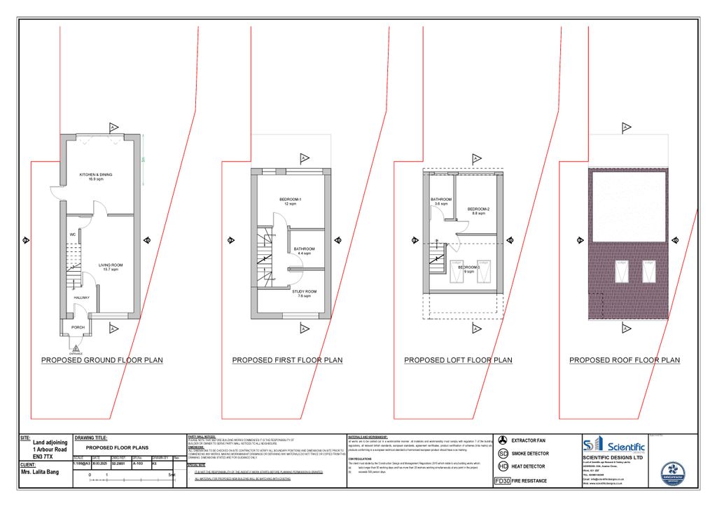
Permission (ref: 25/01415/ful) was granted by Enfield Council on 2nd July 2025 for "Erection 2 storey detached dwelling house with habitable loft space, rear amenity space, vehicular crossover and associated hardstanding".
Proposed accommodation:
Ground Floor- Reception Room, Kitchen/Diner, WC
First Floor- Bedroom, Study, Bathroom
Loft- Two Bedrooms, Bathroom
Auction Sale - 21/04/2026 - To book viewings, view the legal pack and register to bid please refer to the full sales particulars on the Savills Auctions website. -
Of interest to builders and developers
A site of approximately 2,722.19 sq ft with planning permission granted for a three bedroom detached house, well located for the Shopping and Recreational amenities of Enfield- Vacant
Description
A site of approximately 2,722 sq ft
Location
Located near to the junction of Arbour Road and The Ride
An extensive range of Shopping facilities can be found nearby in the centre of Enfield
Recreational amenities of Durants Park and Ponders End Park
Transport
Overound- Soutbury
National Rail- Ponders End
Planning
Permission (ref: 25/01415/ful) was granted by Enfield Council on 2nd July 2025 for "Erection 2 storey detached dwelling house with habitable loft space, rear amenity space, vehicular crossover and associated hardstanding".
Proposed accommodation:
Ground Floor- Reception Room, Kitchen/Diner, WC
First Floor- Bedroom, Study, Bathroom
Loft- Two Bedrooms, Bathroom
Mortgage calculator
Monthly repayment
£800 per month
Whole of market comparison
70+ lenders and 10,000+ products
The monthly repayments provided are estimates and should be used as a guide only. The actual amount you can borrow will depend on your personal financial situation and subject to a full application. For a more precise estimate, please use the Mojo mortgage calculator. Your home or property may be repossessed if you do not keep up repayments on your mortgage.



.png)