Guide price
£500,000
Land for saleHungerdown Lane, Lawford, Manningtree, Essex CO11
Freehold
About this property
Outstanding rural position
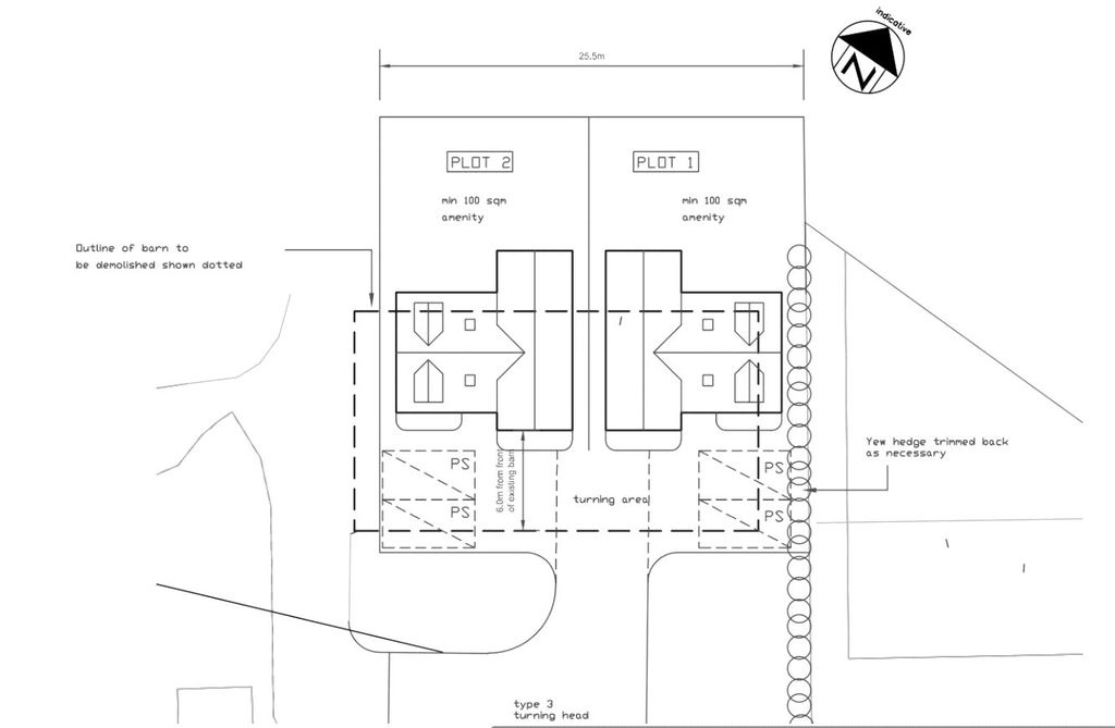
Plot of approximately 0.6 acres (sts)
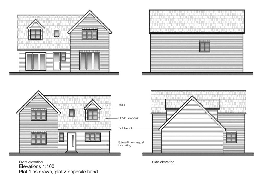
Full planning for two, three bedroom dwellings
Under Tendring reference 22/01423/ful
Set on Hungerdown Lane, Lawford, this attractive parcel of land extends to approximately 0.6 acres (sts) and offers an exceptional opportunity for development. Benefiting from planning permission for two thoughtfully designed three-bedroom detached dwellings, the plot combines a peaceful, semi-rural setting with convenient access to local amenities and transport links. The site presents an ideal prospect for those seeking to create high-quality homes in a well-regarded Essex location.
Mortgage calculator
Monthly repayment
£2,501 per month
Whole of market comparison
70+ lenders and 10,000+ products
The monthly repayments provided are estimates and should be used as a guide only. The actual amount you can borrow will depend on your personal financial situation and subject to a full application. For a more precise estimate, please use the Mojo mortgage calculator. Your home or property may be repossessed if you do not keep up repayments on your mortgage.



.png)