£850,000
Land for saleRectory Meadow, Bradwell, Braintree CM77
5 beds
2 baths
1 reception
Freehold
About this property
Part 1 of 2
A very exclusive trio of expansive properties with water frontage, we expect these to have a gated entrance and estate fencing to the waterside for security and safety.
The second part is a more modest development with a range of properties from a bungalow through a terrace and two detached houses, all benefiting from access out to the A120 link road between Braintree and Colchester.
The vendor has dealt with the reserved matters making this a development which can commence upon completion.
Predicted gdv £3,225,000
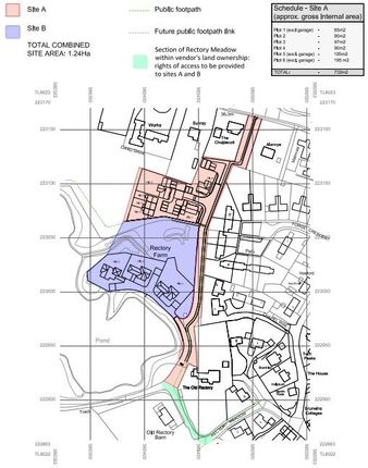
This Exclusive development is split into two parts.
The first part (Plot B) A very exclusive trio of expansive properties with water frontage, we expect to have a gated entrance and estate fencing to the waterside for security and safety.
Planning number 20_01897_OUT
The second part (Plot A) being a more modest development with a range of properties from a bungalow through to a terrace and two detached houses.
Planning number 21_01772_OUT
(CGI Imagery for indication of the site only please see planning portal for approved plans)
All of the properties benefit from access out to the A120 link road between Braintree and Colchester giving onward access to Stansted airport and the ports of Harwich and Felixstowe.
Contact our Residential sales department now for further information
A very exclusive trio of expansive properties with water frontage, we expect these to have a gated entrance and estate fencing to the waterside for security and safety.
The second part is a more modest development with a range of properties from a bungalow through a terrace and two detached houses, all benefiting from access out to the A120 link road between Braintree and Colchester.
The vendor has dealt with the reserved matters making this a development which can commence upon completion.
Predicted gdv £3,225,000
This Exclusive development is split into two parts.
The first part (Plot B) A very exclusive trio of expansive properties with water frontage, we expect to have a gated entrance and estate fencing to the waterside for security and safety.
Planning number 20_01897_OUT
The second part (Plot A) being a more modest development with a range of properties from a bungalow through to a terrace and two detached houses.
Planning number 21_01772_OUT
(CGI Imagery for indication of the site only please see planning portal for approved plans)
All of the properties benefit from access out to the A120 link road between Braintree and Colchester giving onward access to Stansted airport and the ports of Harwich and Felixstowe.
Contact our Residential sales department now for further information
Mortgage calculator
Monthly repayment
£4,252 per month
Whole of market comparison
70+ lenders and 10,000+ products
The monthly repayments provided are estimates and should be used as a guide only. The actual amount you can borrow will depend on your personal financial situation and subject to a full application. For a more precise estimate, please use the Mojo mortgage calculator. Your home or property may be repossessed if you do not keep up repayments on your mortgage.



.png)