Guide price
£68,000
3 bed detached house for saleKinloch Church, Kinloch, Blairgowrie, Perthshire PH106Sh PH10
3 beds
About this property
***freehold former church building with full vacant possession located in incredible rural location***Rare opportunity to create unique family home***
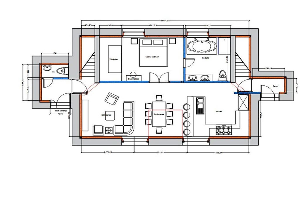
***Fantastic opportunity for conversion to residential dwelling (subject to planning). Indicative plans for house with 3 en suite bedrooms, lounge, kitchen and bathroom***
***Previous local sales evidence: Mid Brae, Kinloch, March 2023, £399,000. Woodacre, Kinloch, May 2023, £203,500. Desirable rural location in sought after area***
***Seller has indicated that the local council have given a favourable response from Perth & Kinross council with regard to residential conversion***
***Incredible opportunity to create a wonderful family home in a beautiful rural location. Church conversions can create the most amazing residential properties with imagination***
***freehold former church building with full vacant possession located in incredible rural location***Rare opportunity to create unique family home*** ***Fantastic opportunity for conversion to residential dwelling (subject to planning). Indicative plans for house with 3 en suite bedrooms, lounge, kitchen and bathroom*** ***Previous local sales evidence: Mid Brae, Kinloch, March 2023, £399,000. Woodacre, Kinloch, May 2023, £203,500. Desirable rural location in sought after area*** ***Seller has indicated that the local council have given a favourable response from Perth & Kinross council with regard to residential conversion*** ***Incredible opportunity to create a wonderful family home in a beautiful rural location. Church conversions can create the most amazing residential properties with imagination***
Blairgowrie High Street and town centre is a five-minute walk from Ava Estate. The picturesque town is a vibrant market town offering a diverse range of independent shops and supermarkets including Tesco, Lidl, Sainsburys and Co-op. The Well Meadow in the centre of town host a monthly Farmers Market. There are numerous cafes and restaurants serving from family meals to gourmet dining. Keep fit enthusiasts enjoy the Swimming Pool, Leisure Centre and Gym. Blairgowrie has a Cottage Hospital, a Medical Centre, Dentists. Primary School and High School. This is an unspoiled, extremely beautiful part of Scotland with a strong all year-round tourist base. Available is an excellent variety of land and water leisure pursuits including championship golf courses, hill walking, kayaking and skiing. Cultural attractions steeped in history close by include Glamis Castle, Scone Palace and Dunkeld Cathedral. The area has numerous whisky distilleries to experience the liquid gold of Scotland. The city of Perth and Dundee are 16 miles away, St. Andrews 32 miles, Edinburgh 60 miles, Glasgow 75 miles and Aberdeen 72 miles. Edinburgh airport is an hour by car.
Auction Details
04 June 2026,10am-3pm
Timed Online Auction
How to Bid Now
Submit an enquiry now or visit our website for full details on how to bid on this property.
Future Property Auctions - Scotland's Largest Land and Property Auction House. Over 400 lots auctioned every 2 weeks including flats, houses, land & commercial.
Get a Fast Sale and a Fair Price with Future Property Auctions. Contact Us now for a free Auction Valuation.
Mortgage calculator
£340 per month
70+ lenders and 10,000+ products
The monthly repayments provided are estimates and should be used as a guide only. The actual amount you can borrow will depend on your personal financial situation and subject to a full application. For a more precise estimate, please use the Mojo mortgage calculator. Your home or property may be repossessed if you do not keep up repayments on your mortgage.



.jpeg)