£375,000
Land for saleBuilding Plot Longmoor Road, Greatham, Greatham, Liss GU33
About this property
Call Now (24/7) or Enquire Online to View.
Full Planning Permission Granted
Available as Seperate Plots or One Plot With Permission For Two Houses
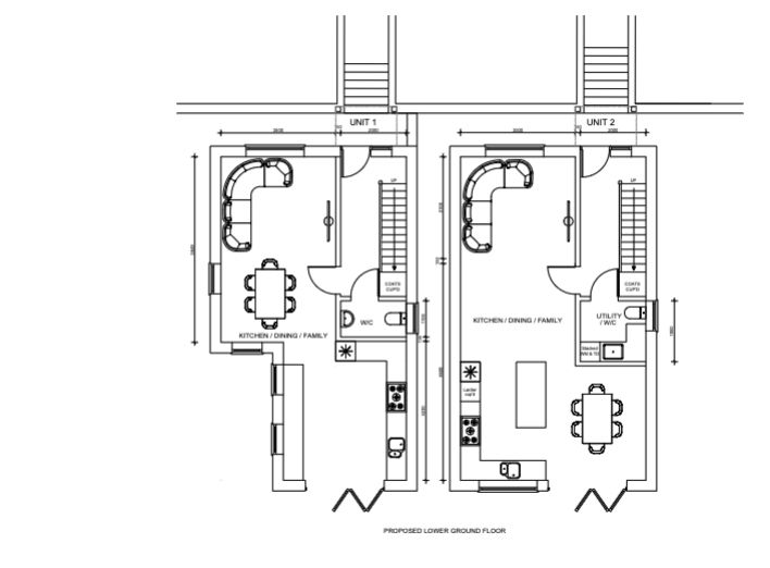
Planning Approved for Luxury Three Bedroom, 2 Bathroom Homes
Garages and Parking at Rear
Located Inside the South Downs National Park
Surrounded By Green Spaces and Open Countryside
Self Build Potential
Exciting Opportunity to Build Inside the National Park
Positioned on Longmoor Road in Greatham near Liss, this exciting parcel of land offers purchasers the chance to create a truly special home in one of the UK's most protected and picturesque landscapes. The application, validated in November 2025, confirms a thoughtfully considered scheme within this highly desirable semi-rural setting.
Both plots present a fantastic self-build or developer opportunity, ideal for those seeking to craft a bespoke home tailored to modern living while embracing the tranquillity of the surrounding countryside. The setting offers a perfect balance-peaceful and private, yet within easy reach of local amenities, transport links, and the vibrant village communities nearby.
The South Downs is renowned for its rolling hills, scenic walking routes, and dark skies, making this an exceptional lifestyle purchase as well as a sound investment. Demand for high-quality homes within the National Park remains consistently strong, further enhancing the long-term appeal of this opportunity.
Mortgage calculator
£1,875 per month
70+ lenders and 10,000+ products
The monthly repayments provided are estimates and should be used as a guide only. The actual amount you can borrow will depend on your personal financial situation and subject to a full application. For a more precise estimate, please use the Mojo mortgage calculator. Your home or property may be repossessed if you do not keep up repayments on your mortgage.



.png)