Offers in region of
£675,000
Land for saleChurch Lane, Underwood, Nottingham NG16
Freehold
About this property
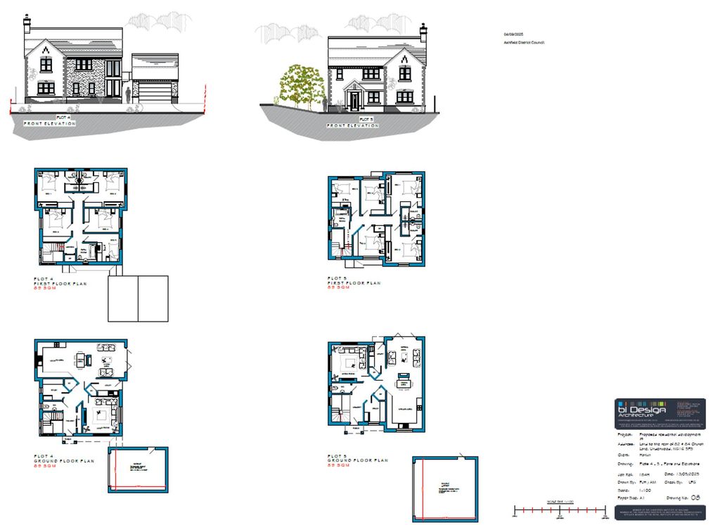
Land with planning - Planning reference: V/2025/0513
Presenting a remarkable opportunity to acquire a prime parcel of residential land with planning permission already secured (Planning Reference: V/2025/0513). This well-positioned plot offers an excellent foundation for those seeking to create their dream home or for developers looking to embark on a bespoke project. The granted planning consent provides a clear pathway to development, allowing you to move forward with confidence and clarity. The site’s generous proportions offer flexibility in design, making it suitable for a variety of potential layouts to suit individual requirements or investment strategies. Located within a sought-after area, the land benefits from convenient access to local amenities, transport links, and reputable schools, ensuring an appealing lifestyle for future residents. Whether you envision a contemporary family residence or a unique architectural statement, this plot delivers the perfect canvas for your aspirations. Rarely does such a well-located and ready-to-develop site become available, making this an unmissable prospect for discerning buyers and seasoned developers alike. For further details or to arrange a viewing of the site, please contact our office today and take the first step towards bringing your vision to life.
Disclaimer
These particulars do not constitute part or all of a contract. While we endeavour to make our particulars fair, accurate and reliable, they are only a general guide to the property the photos are for reference purpose only, the appliances/white goods advertised may not be in situ and have not been tested. If there are any points which are of particular importance to you or any particular appliances or white goods required please check with the office and we will be pleased to check the position on these.
Disclaimer
These particulars do not constitute part or all of a contract. While we endeavour to make our particulars fair, accurate and reliable, they are only a general guide to the property the photos are for reference purpose only, the appliances/white goods advertised may not be in situ and have not been tested. If there are any points which are of particular importance to you or any particular appliances or white goods required please check with the office and we will be pleased to check the position on these.
Mortgage calculator
Monthly repayment
£3,376 per month
Whole of market comparison
70+ lenders and 10,000+ products
The monthly repayments provided are estimates and should be used as a guide only. The actual amount you can borrow will depend on your personal financial situation and subject to a full application. For a more precise estimate, please use the Mojo mortgage calculator. Your home or property may be repossessed if you do not keep up repayments on your mortgage.
More information
Tenure
Freehold
Council tax band
Council tax band not yet known
Ground rent
£0



.png)