£175,000
Land for saleLand At Ladywood Road, Kirk Hallam, Ilkeston, Derby DE7
Just added
Freehold
About this property
Land For Sale
Three Plots for Sale
Planning Permission Granted (Erewash Council Ref ERE0224/0004.)
Three, 2.5S= Storey Four Bedrooms Homes
Designed
2 Parking spaces for each plot
Site available for inspection
Rare Opportunity
EPC Available Upon Completion
Square Footage Available Upon Completion
Development site for three new dwellings - rare opportunity - three four bedroom detached - close to the centre of kirk hallam. The site is situated in this established residential area which has a number of local amenities and facilities and is within easy reach of all those provided by Ilkeston as well as being only a few miles away from both Nottingham and Derby. The land is being sold with the benefit of Planning Permission - Ref ERE0224/0004.
General description A development site on which to build three additional dwellings (Plot 4 has already been built) comprising of three 4 bedroom 2.5 storey detached properties which is located on Ladywood Road, Kirk Hallam, near Ilkeston, Derby.
The development on which Planning Permission has been obtained to build three detached houses with off road parking and gardens to the front and rear.
The site is situated in this established residential area which has a number of local amenities and facilities and is within easy reach of all those provided by Ilkeston as well as being only a few miles away from both Nottingham and Derby,
The land is being sold with the benefit of Planning Permission - Ref ERE0224/0004.
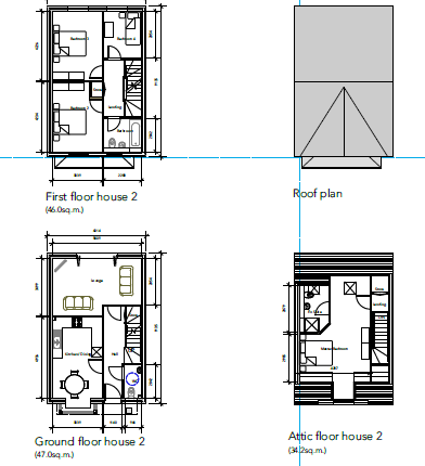
With accommodation set to comprise of entrance hall, downstairs w.c, kitchen/diner and lounge to the ground floor. Three Bedrooms and a family bathroom to the first floor. To complete the accommodation there is set to be a fourth bedroom to the second floor benefiting from an en-suite.
General description A development site on which to build three additional dwellings (Plot 4 has already been built) comprising of three 4 bedroom 2.5 storey detached properties which is located on Ladywood Road, Kirk Hallam, near Ilkeston, Derby.
The development on which Planning Permission has been obtained to build three detached houses with off road parking and gardens to the front and rear.
The site is situated in this established residential area which has a number of local amenities and facilities and is within easy reach of all those provided by Ilkeston as well as being only a few miles away from both Nottingham and Derby,
The land is being sold with the benefit of Planning Permission - Ref ERE0224/0004.
With accommodation set to comprise of entrance hall, downstairs w.c, kitchen/diner and lounge to the ground floor. Three Bedrooms and a family bathroom to the first floor. To complete the accommodation there is set to be a fourth bedroom to the second floor benefiting from an en-suite.
Mortgage calculator
Monthly repayment
£875 per month
Whole of market comparison
70+ lenders and 10,000+ products
The monthly repayments provided are estimates and should be used as a guide only. The actual amount you can borrow will depend on your personal financial situation and subject to a full application. For a more precise estimate, please use the Mojo mortgage calculator. Your home or property may be repossessed if you do not keep up repayments on your mortgage.



.png)