£150,000
Land for saleHall Road, Asheldham, Southminster CM0
EPC Rating: E
Just added
Freehold
About this property
Land with Planning Granted
Planning Ref 24/00273/ful
Village Location
Nearby Train Station at Southminster
Summary
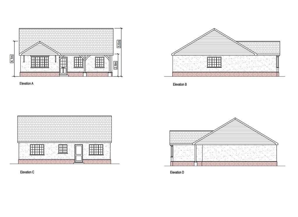
**land with planning permission granted** A chance to acquire this parcel of land in the desirable village of Asheldham, with planning granted for a three bedroom detached bungalow with associated parking.
Description
This building plot is offered with full planning permission for demolition of existing outbuilding an construction of a three bedroom detached bungalow with associated parking.
Located on a country lane opposite paddocks in the semi-rural village of Asheldham on the Dengie peninsula, and within reach of nearby Southminster with its train station and wealth of shops, as well as Burnham-On-Crouch with its picturesque waterfront and marina.
Full application details can be found on the Maldon District Council Planning Portal using reference 24/00273/ful.
1. Money laundering regulations: Intending purchasers will be asked to produce identification documentation at a later stage and we would ask for your co-operation in order that there will be no delay in agreeing the sale.
2. General: While we endeavour to make our sales particulars fair, accurate and reliable, they are only a general guide to the property and, accordingly, if there is any point which is of particular importance to you, please contact the office and we will be pleased to check the position for you, especially if you are contemplating travelling some distance to view the property.
3. The measurements indicated are supplied for guidance only and as such must be considered incorrect.
4. Services: Please note we have not tested the services or any of the equipment or appliances in this property, accordingly we strongly advise prospective buyers to commission their own survey or service reports before finalising their offer to purchase.
5. These particulars are issued in good faith but do not constitute representations of fact or form part of any offer or contract. The matters referred to in these particulars should be independently verified by prospective buyers or tenants. Neither sequence (UK) limited nor any of its employees or agents has any authority to make or give any representation or warranty whatever in relation to this property.
**land with planning permission granted** A chance to acquire this parcel of land in the desirable village of Asheldham, with planning granted for a three bedroom detached bungalow with associated parking.
Description
This building plot is offered with full planning permission for demolition of existing outbuilding an construction of a three bedroom detached bungalow with associated parking.
Located on a country lane opposite paddocks in the semi-rural village of Asheldham on the Dengie peninsula, and within reach of nearby Southminster with its train station and wealth of shops, as well as Burnham-On-Crouch with its picturesque waterfront and marina.
Full application details can be found on the Maldon District Council Planning Portal using reference 24/00273/ful.
1. Money laundering regulations: Intending purchasers will be asked to produce identification documentation at a later stage and we would ask for your co-operation in order that there will be no delay in agreeing the sale.
2. General: While we endeavour to make our sales particulars fair, accurate and reliable, they are only a general guide to the property and, accordingly, if there is any point which is of particular importance to you, please contact the office and we will be pleased to check the position for you, especially if you are contemplating travelling some distance to view the property.
3. The measurements indicated are supplied for guidance only and as such must be considered incorrect.
4. Services: Please note we have not tested the services or any of the equipment or appliances in this property, accordingly we strongly advise prospective buyers to commission their own survey or service reports before finalising their offer to purchase.
5. These particulars are issued in good faith but do not constitute representations of fact or form part of any offer or contract. The matters referred to in these particulars should be independently verified by prospective buyers or tenants. Neither sequence (UK) limited nor any of its employees or agents has any authority to make or give any representation or warranty whatever in relation to this property.
Mortgage calculator
Monthly repayment
£750 per month
Whole of market comparison
70+ lenders and 10,000+ products
The monthly repayments provided are estimates and should be used as a guide only. The actual amount you can borrow will depend on your personal financial situation and subject to a full application. For a more precise estimate, please use the Mojo mortgage calculator. Your home or property may be repossessed if you do not keep up repayments on your mortgage.



.png)