Offers over
£150,000
Land for saleThe Ridgeway, Saundersfoot SA69
3 beds
2 baths
2 receptions
About this property
Rare opportunity to acquire a spacious building plot within Saundersfoot village.
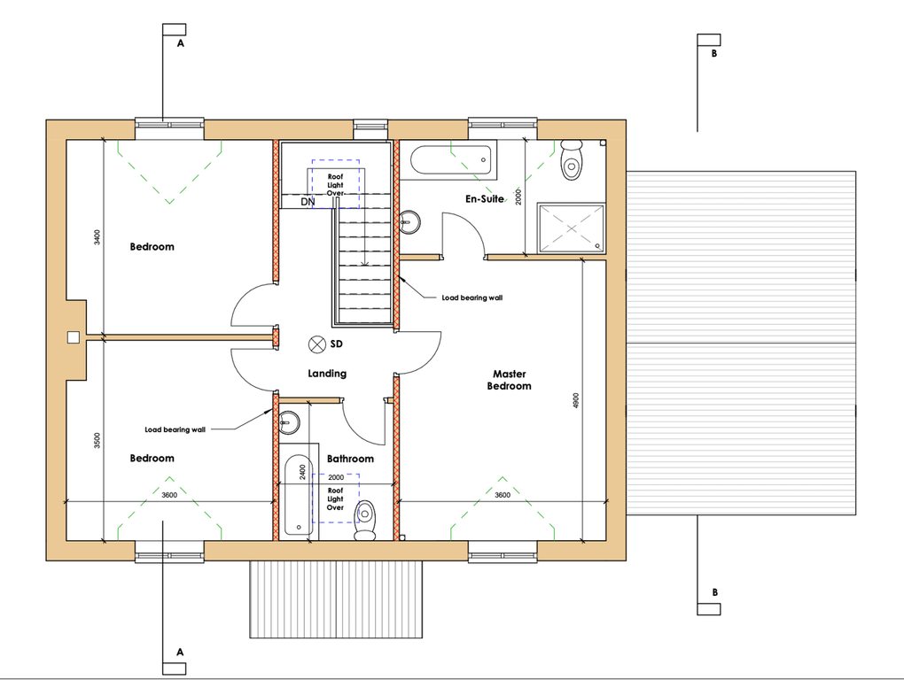
Full planning permission in place for a three-bedroom detached home.
Sought-after Ridgeway location offering peace and privacy while remaining walkable to the village.
Generous plot size providing excellent scope for a substantial, high-quality build.
Situated on The Ridgeway, the plot enjoys an enviable position just a short walk from the heart of the village, offering the perfect balance of convenience and tranquillity. Tucked away from the main hustle and bustle, the location provides a peaceful setting while still allowing easy access to Saundersfoot’s beautiful beach, harbour, shops, cafés and restaurants.
The plot itself is generously sized, offering excellent scope to create a substantial and well-designed detached property, ideal as a primary residence, holiday home or investment.
With planning permission already granted, this is a turnkey opportunity for buyers looking to build their own home in one of Pembrokeshire’s most desirable seaside locations, without the uncertainty and delays often associated with the planning process.
Opportunities such as this are rarely available within Saundersfoot village, making early viewing highly recommended.
Mortgage calculator
£750 per month
70+ lenders and 10,000+ products
The monthly repayments provided are estimates and should be used as a guide only. The actual amount you can borrow will depend on your personal financial situation and subject to a full application. For a more precise estimate, please use the Mojo mortgage calculator. Your home or property may be repossessed if you do not keep up repayments on your mortgage.



.png)