£190,000
2 bed semi-detached house for saleMontpelier Avenue, Blackpool, Lancashire FY2
2 beds
1 bath
2 receptions
Just added
Freehold
About this property
Semi Detached
Two Bedrooms
Open Plan Living Space
Fantastic Sized Garden
Off Street Parking
Short Walk to The Promenade
Close to all Local Amenities
This well presented two bedroom semi detached home offers generous and versatile living space, ideal for a range of buyers.
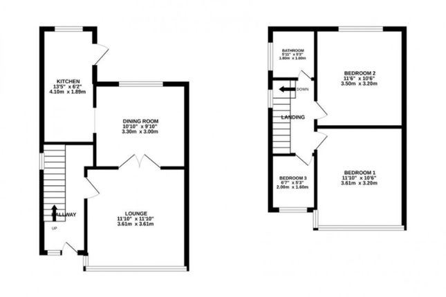
The ground floor features a spacious lounge and dining area which flows seamlessly through to the rear of the property, creating a bright and welcoming living space. The fitted kitchen sits to the back of the home and benefits from an additional sitting room off it, perfect as a snug, playroom or home office space. A convenient downstairs WC is neatly positioned under the stairs.
Upstairs, the property boasts two well proportioned double bedrooms, along with a newly fitted modern shower room and a separate WC.
Externally, the home offers a driveway providing offroad parking and a fantastic sized rear garden, ideal for families, entertaining, or simply enjoying outdoor space.
Situated close to all local amenities and within easy reach of Bispham, the property also benefits from being just a very short walk to the promenade, perfect for coastal walks and seaside living. Early viewing is highly recommended to appreciate the space on offer.
The ground floor features a spacious lounge and dining area which flows seamlessly through to the rear of the property, creating a bright and welcoming living space. The fitted kitchen sits to the back of the home and benefits from an additional sitting room off it, perfect as a snug, playroom or home office space. A convenient downstairs WC is neatly positioned under the stairs.
Upstairs, the property boasts two well proportioned double bedrooms, along with a newly fitted modern shower room and a separate WC.
Externally, the home offers a driveway providing offroad parking and a fantastic sized rear garden, ideal for families, entertaining, or simply enjoying outdoor space.
Situated close to all local amenities and within easy reach of Bispham, the property also benefits from being just a very short walk to the promenade, perfect for coastal walks and seaside living. Early viewing is highly recommended to appreciate the space on offer.
Mortgage calculator
Monthly repayment
£950 per month
Whole of market comparison
70+ lenders and 10,000+ products
The monthly repayments provided are estimates and should be used as a guide only. The actual amount you can borrow will depend on your personal financial situation and subject to a full application. For a more precise estimate, please use the Mojo mortgage calculator. Your home or property may be repossessed if you do not keep up repayments on your mortgage.



.png)