Offers over
£189,000
3 bed semi-detached house for sale26 Buckley Crescent, Thornton-Cleveleys FY5
3 beds
1 bath
EPC Rating: D
Just added
Freehold
About this property
Alarm
Central heating
Double glazed
Garage
Garden
Parking
Utilities included
Broadband/adsl
Property number 53368. Enquire through Zoopla's messaging system and we'll respond within 5 minutes, 24/7
A Well presented three bedroom semi detached family home .
For Sale
Situated on Buckley Crescent in Little Bispham, Cleveleys. 5 minutes walk from the beach or 1 minute drive, the rear garden is on the edge of the forest nature reserve with wonderful views .
The property benefits from a spacious south east facing rear garden, and offers lots of potential.
Briefly comprising
Entrance, hallway, lounge, kitchen, dinning room, first floor landing, three bedrooms, bathroom, front driveway for 2 cars, garage with space for one car on shared drive . A rear extensive garden with large wooden shed, with electrics, greenhouse, wood storage shed, duck pen with pond and fruit trees .
Close to schools and amenities, while being in peaceful picturesque surroundings.
Entrance UPVC double glazed entrance door and windows .
Meter cupboard, radiator and staircase leading to the first floor, with storage under stairwell housing the boiler.
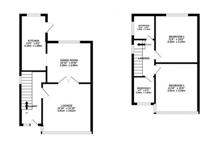
Kitchen 13'5 x 6'2 (4.10 x 1.89) UPVC double glazed window to rear aspect, modern fitted kitchen with a range of wall and base units with complementary work surfaces, integrated electric oven, hob with extractor, stainless steel sink with mixer tap, tiled splash back.
Lounge 11'10 x 11'10 (3.61 x 3.61) UPVC double glazed bay window to the front aspect, radiator and log burner and fire place, laminate flooring .
Dinning room 10'10 x 9'10 (3.30 x 3) UPVC double glazed French windows leading to decking area . Radiator.
First floor landing UPVC double glazed window to the side aspect.
Bedroom one 11'10 x 10'6 (3.61 x 3.20) UPVC double glazed bay window to the front aspect and radiator.
Bedroom two 11'6 x 10'6 (3.50 x 3.20) UPVC double glazed window to the rear aspect with lovely views and radiator.
Bedroom three 6'7 x 5'3 (2.0 x 1.60) UPVC double glazed window to the front aspect and radiator.
Bathroom 5'11 x 5'3 (1.80 x 1.60) UPVC double glazed window to the side aspect. Modern fitted three piece suite, briefly comprising: Panelled bath with shower over, low flush w.c, wash hand basin, radiator and tiled walls.
Front garage and driveway, with parking for 2 vehicles and room for a small car at the side of building.
Rear Spacious south east facing rear garden, garden shed green house and duck pen with pond lots of space for extending .
Council tax band- B Tenure The property is Freehold;
Viewings Viewings are on open days, to be arranged.
Private buyers only
£189000
A Well presented three bedroom semi detached family home .
For Sale
Situated on Buckley Crescent in Little Bispham, Cleveleys. 5 minutes walk from the beach or 1 minute drive, the rear garden is on the edge of the forest nature reserve with wonderful views .
The property benefits from a spacious south east facing rear garden, and offers lots of potential.
Briefly comprising
Entrance, hallway, lounge, kitchen, dinning room, first floor landing, three bedrooms, bathroom, front driveway for 2 cars, garage with space for one car on shared drive . A rear extensive garden with large wooden shed, with electrics, greenhouse, wood storage shed, duck pen with pond and fruit trees .
Close to schools and amenities, while being in peaceful picturesque surroundings.
Entrance UPVC double glazed entrance door and windows .
Meter cupboard, radiator and staircase leading to the first floor, with storage under stairwell housing the boiler.
Kitchen 13'5 x 6'2 (4.10 x 1.89) UPVC double glazed window to rear aspect, modern fitted kitchen with a range of wall and base units with complementary work surfaces, integrated electric oven, hob with extractor, stainless steel sink with mixer tap, tiled splash back.
Lounge 11'10 x 11'10 (3.61 x 3.61) UPVC double glazed bay window to the front aspect, radiator and log burner and fire place, laminate flooring .
Dinning room 10'10 x 9'10 (3.30 x 3) UPVC double glazed French windows leading to decking area . Radiator.
First floor landing UPVC double glazed window to the side aspect.
Bedroom one 11'10 x 10'6 (3.61 x 3.20) UPVC double glazed bay window to the front aspect and radiator.
Bedroom two 11'6 x 10'6 (3.50 x 3.20) UPVC double glazed window to the rear aspect with lovely views and radiator.
Bedroom three 6'7 x 5'3 (2.0 x 1.60) UPVC double glazed window to the front aspect and radiator.
Bathroom 5'11 x 5'3 (1.80 x 1.60) UPVC double glazed window to the side aspect. Modern fitted three piece suite, briefly comprising: Panelled bath with shower over, low flush w.c, wash hand basin, radiator and tiled walls.
Front garage and driveway, with parking for 2 vehicles and room for a small car at the side of building.
Rear Spacious south east facing rear garden, garden shed green house and duck pen with pond lots of space for extending .
Council tax band- B Tenure The property is Freehold;
Viewings Viewings are on open days, to be arranged.
Private buyers only
£189000
Mortgage calculator
Monthly repayment
£945 per month
Whole of market comparison
70+ lenders and 10,000+ products
The monthly repayments provided are estimates and should be used as a guide only. The actual amount you can borrow will depend on your personal financial situation and subject to a full application. For a more precise estimate, please use the Mojo mortgage calculator. Your home or property may be repossessed if you do not keep up repayments on your mortgage.



.png)