Guide price
£39,000
1 bed terraced house for saleDorset Street, Easington Lane, Houghton Le Spring DH5
1 bed
1 bath
1 reception
EPC Rating: C
Sold STC
About this property
Ideal Investment Opportunity Or First Time Buyer
One Spacious Bedroom
Stylish Kitchen
Utility Area
South Facing Rear Yard
Potential rent **550 pcm**
Summary
**one bedroom**open plan living**utiltiy area**modern bathroom**south facing rear yard**popular location**potential rental income of 550 pcm**
Pattinson Estate Agents are delighted to bring to the market this deceptively spacious property, which has being renovated to a high standard and is ideally situated in Dorest Street, Houghton Le Spring. Perfectly positioned within close proximity to local shops and other amenities, popular schools, good public transport and major road links via A690. Also within short driving distance to multiple country parks, Dalton Park Outlet, Sunderland & Durham City Centres.
This impressively presented property is spacious throughout and briefly comprises:- Property entrance, which consists of the lounge and a stylish kitchen with an island, utility area and modern bathroom. To the first floor lies a spacious bedroom and to the rear there is an enclosed south facing yard.
Early viewings come highly recommended to appreciate the size and standard of this property. Please call our Houghton branch to arrange a viewing.
Council Tax Band: A
Tenure: Freehold
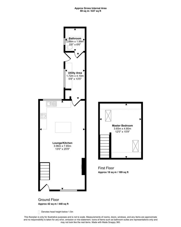
Lounge Area (4.35m x 4.15m)
The lounge area has laminate flooring, radiator, a fireplace with a feature wooden beam and a double glazed front aspect window.
Kitchen Area (3.72m x 4.15m)
Stylish kitchen benefiting from a range of upper and lower unit with contrasting work surfaces, a composite sink unit, plumbing for a dishwasher and integrated oven with a gas hob. There is also the additional bonus of an island with further storage units and a breakfast bar, laminate flooring, two radiators and a double glazed rear aspect window.
Utility Room (4.22m x 1.82m)
The utility has fitted base units with contrasting square edge worksurfaces, plumbing for a washing machine, space for a dryer. Laminate flooring, a storage cupboard, radiator, double glazed window and an external door leading to the rear yard.
Bathroom (2.04m x 1.69m)
Modern bathroom benefiting from a walk-in shower, hand wash basin and WC vanity unit. Tile flooring, tiled walls, a heated towel rail and a double glazed window.
Bedroom (5.09m x 3.79m)
Spacious double bedroom with carpet flooring, a radiator and two Velux window. There is also amble space for a vanity/dressing area.
External
Externally to the rear lies a fully enclosed south facing yard.
**one bedroom**open plan living**utiltiy area**modern bathroom**south facing rear yard**popular location**potential rental income of 550 pcm**
Pattinson Estate Agents are delighted to bring to the market this deceptively spacious property, which has being renovated to a high standard and is ideally situated in Dorest Street, Houghton Le Spring. Perfectly positioned within close proximity to local shops and other amenities, popular schools, good public transport and major road links via A690. Also within short driving distance to multiple country parks, Dalton Park Outlet, Sunderland & Durham City Centres.
This impressively presented property is spacious throughout and briefly comprises:- Property entrance, which consists of the lounge and a stylish kitchen with an island, utility area and modern bathroom. To the first floor lies a spacious bedroom and to the rear there is an enclosed south facing yard.
Early viewings come highly recommended to appreciate the size and standard of this property. Please call our Houghton branch to arrange a viewing.
Council Tax Band: A
Tenure: Freehold
Lounge Area (4.35m x 4.15m)
The lounge area has laminate flooring, radiator, a fireplace with a feature wooden beam and a double glazed front aspect window.
Kitchen Area (3.72m x 4.15m)
Stylish kitchen benefiting from a range of upper and lower unit with contrasting work surfaces, a composite sink unit, plumbing for a dishwasher and integrated oven with a gas hob. There is also the additional bonus of an island with further storage units and a breakfast bar, laminate flooring, two radiators and a double glazed rear aspect window.
Utility Room (4.22m x 1.82m)
The utility has fitted base units with contrasting square edge worksurfaces, plumbing for a washing machine, space for a dryer. Laminate flooring, a storage cupboard, radiator, double glazed window and an external door leading to the rear yard.
Bathroom (2.04m x 1.69m)
Modern bathroom benefiting from a walk-in shower, hand wash basin and WC vanity unit. Tile flooring, tiled walls, a heated towel rail and a double glazed window.
Bedroom (5.09m x 3.79m)
Spacious double bedroom with carpet flooring, a radiator and two Velux window. There is also amble space for a vanity/dressing area.
External
Externally to the rear lies a fully enclosed south facing yard.
Mortgage calculator
Monthly repayment
£195 per month
Whole of market comparison
70+ lenders and 10,000+ products
The monthly repayments provided are estimates and should be used as a guide only. The actual amount you can borrow will depend on your personal financial situation and subject to a full application. For a more precise estimate, please use the Mojo mortgage calculator. Your home or property may be repossessed if you do not keep up repayments on your mortgage.



.png)