£330,000
4 bed end terrace house for saleVictoria Road, Basildon SS15
4 beds
1 bath
EPC Rating: D
Just added
Freehold
About this property
Adjoining Land Included in Sale, Land Development, 4 Bedrooms, Bathroom, Downstairs WC
Full Description
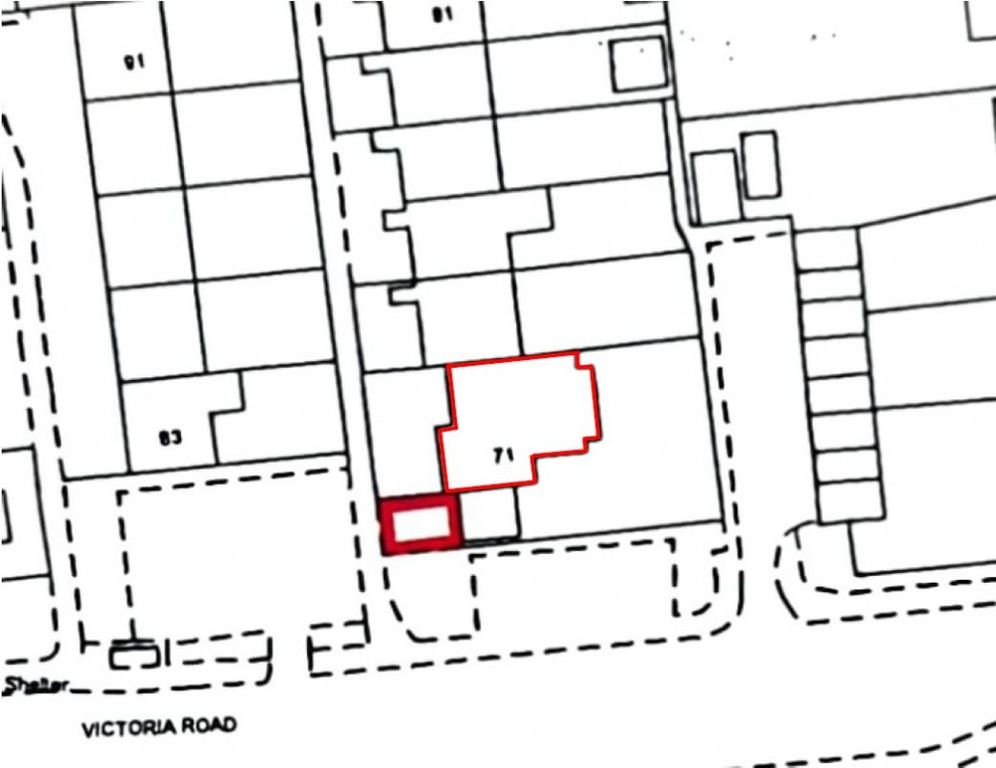
We are pleased to offer this affordable mid terrace 4-bedroom house located in Laindon, Basildon. The sale includes an additional development plot adjoining the property.
This is a project sale, Ideal for investors or families on a budget seeking to personalise a spacious property with scope to expand or add to an investment portfolio.
The property is in need of a partial refurb and benefits from double glazing and central heating throughout.
There is a rear garden that’s perfect for summer days with the family and guests.
Contact us today to arrange a must-see viewing. **enquiries**
For all enquiries, viewing requests or to create your own listing please visit the Emoov website. If calling, please quote reference: S6506
We are pleased to offer this affordable mid terrace 4-bedroom house located in Laindon, Basildon. The sale includes an additional development plot adjoining the property.
This is a project sale, Ideal for investors or families on a budget seeking to personalise a spacious property with scope to expand or add to an investment portfolio.
The property is in need of a partial refurb and benefits from double glazing and central heating throughout.
There is a rear garden that’s perfect for summer days with the family and guests.
Contact us today to arrange a must-see viewing. **enquiries**
For all enquiries, viewing requests or to create your own listing please visit the Emoov website. If calling, please quote reference: S6506
Mortgage calculator
Monthly repayment
£1,650 per month
Whole of market comparison
70+ lenders and 10,000+ products
The monthly repayments provided are estimates and should be used as a guide only. The actual amount you can borrow will depend on your personal financial situation and subject to a full application. For a more precise estimate, please use the Mojo mortgage calculator. Your home or property may be repossessed if you do not keep up repayments on your mortgage.


.png)