Offers in region of
£130,000
(£47/sq. ft)
Land for saleFulwood, Preston PR2
2,766 sq. ft
About this property
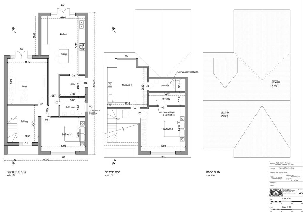
**approx 0.0635 acres of land with previous approved planning permission for A 3 bed detached dormer to be built**
Set in a much sought after and established setting between individual residencies the land provides the opportunity of developing an exclusive and exciting project of individual high specification residence.
The location is most convenient for comprehensive neighbourhood amenities, access into Preston City Centre and onto both the M6 and M55 motorways.
Planning:
Full Planning Permission was granted on the 5th March 2026 by Preston City Council for a scheme of one detached dormer.
(App No. 06/2025/0626 ).
All enquirers into the planning permission must be done by the buyer through Preston Council.
Land like this one do not come to the market very often so call ahead to secure your space for a viewing.
For further information or to arrange a viewing, please call the team on
Please contact Kingswood.
Fulwood Office: Watling Street Road, Fulwood, Preston, PR2 8EA
Disclaimer:
These particulars, whilst believed to be correct, do not form any part of an offer or contract. Intending purchasers should not rely on them as statements or representation of fact. No person in this firm's employment has the authority to make or give any representation or warranty in respect of the property. All measurements quoted are approximate. Although these particulars are thought to be materially correct their accuracy cannot be guaranteed and they do not form part of any contract.
Set in a much sought after and established setting between individual residencies the land provides the opportunity of developing an exclusive and exciting project of individual high specification residence.
The location is most convenient for comprehensive neighbourhood amenities, access into Preston City Centre and onto both the M6 and M55 motorways.
Planning:
Full Planning Permission was granted on the 5th March 2026 by Preston City Council for a scheme of one detached dormer.
(App No. 06/2025/0626 ).
All enquirers into the planning permission must be done by the buyer through Preston Council.
Land like this one do not come to the market very often so call ahead to secure your space for a viewing.
For further information or to arrange a viewing, please call the team on
Please contact Kingswood.
Fulwood Office: Watling Street Road, Fulwood, Preston, PR2 8EA
Disclaimer:
These particulars, whilst believed to be correct, do not form any part of an offer or contract. Intending purchasers should not rely on them as statements or representation of fact. No person in this firm's employment has the authority to make or give any representation or warranty in respect of the property. All measurements quoted are approximate. Although these particulars are thought to be materially correct their accuracy cannot be guaranteed and they do not form part of any contract.
Mortgage calculator
Monthly repayment
£650 per month
Whole of market comparison
70+ lenders and 10,000+ products
The monthly repayments provided are estimates and should be used as a guide only. The actual amount you can borrow will depend on your personal financial situation and subject to a full application. For a more precise estimate, please use the Mojo mortgage calculator. Your home or property may be repossessed if you do not keep up repayments on your mortgage.



.png)